

仲介手数料無料キャンペーン中です。
※キャンペーン内容は売買、賃貸、お部屋により異なります。
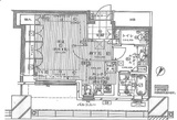
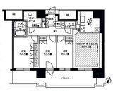
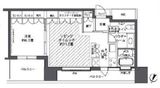
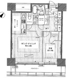
備考:
【こちらもご覧下さい(敷地内別棟)】
カテリーナ三田タワースイート イーストアーク
【駐車場】
平面往復エレベーター式:
普通 全長5,000mm・全幅1,850mm・全高1,550mm・重量2,000kg 37,000円/月額(税別)
ハイルーフ 全長5,000mm・全幅1,850mm・全高2,000mm・重量2,500kg 39,000円/月額(税別)
横行昇降式機械式:全長5,000mm・全幅1,900mm・全高1,550mm・重量2,300kg
【バイク置き場】全長2,300mm・全幅900mm
【駐輪場】有
【共用施設】
・コンシェルジュサービス
クリーニング受け渡し
宅配便の受発注
業務受付等
・ミーティングルーム
9:00~21:00 A・B各一部屋500円/1H 全室1,000円/1H
・スカイガーデン
・スカイビューラウンジ 18:00~22:00
・シティビューラウンジ 9:00~22:00
・ライブラリーラウンジ 24H
・ラグジュアリーラウンジ
・オーナーズスタジオ 24H
・ゲストルーム
15:00~翌11:00 10,000円/1
・キッズルーム 1,000円/1H
【敷地内施設】
イーストアーク
スーパーマーケット(マルエツプチ)
ウエストアーク
歯科医院(カテリーナデンタルオフィス)
保育園
レストラン
【インターネット】利用料無料
【設計】三菱地所設計
【竣工】大林組/清水建設
※駐輪場・バイク置き場・駐車場の空き状況等詳細につきましてはお問い合わせください。
エレベーター,オートロック,宅配ボックス,TVドアホン,駐車場,大型駐車場,バイク置き場,駐輪場,ラウンジ,キッズルーム,コンシェルジュ,ゲストルーム,シアタールーム,敷地内ゴミ置き場,各階ゴミ置き場,内廊下,24時間管理,防犯カメラ,BS,CS,CATV,インターネット,免震・制震
※掲載情報が現況と異なる場合は、現況を優先させていただきます。
※キャンペーン情報は予告なく変更・終了する場合がございます。詳細はお問い合わせください。
※部屋により敷金・礼金・キャンペーンの内容が異なる場合がございますので、詳しい情報は各部屋ページにてご確認ください。
※分譲賃貸は部屋によって所有者が異なる為、内装や設備が変更されている場合がございます。
※ペットの飼育やSOHO利用に関しては、建物自体が許可を出していても、所有者の意向により禁止とされている場合もございますのでご注意ください。
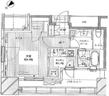
(40代/女性/1LDK)
2015/07/21
駅からも近く明るい印象でした。管理が行き届いてるマンションです。
港区で探していた中で、治安・広さ・建物のグレードと家賃のバランスに納得できる物件です。
※これらの口コミは、ご成約者様や営業スタッフによる主観的な意見や感想です。建物の価値を客観的に評価するものではありません。あくまでも一つの参考としてご活用ください。
空室確認・内覧予約・空き待ちをご希望のお客様は、こちらよりお気軽にお問い合わせください。
03-6890-7755
