

仲介手数料OFF+礼金0キャンペーン中です。
※キャンペーン内容は売買、賃貸、お部屋により異なります。
備考:
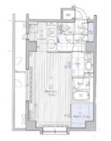
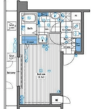
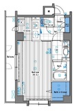
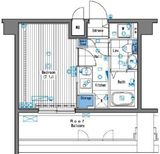
【駐車場】有 平置き式
【バイク置き場】有
【駐輪場】有
【共用施設】
コンシェルジュサービス
【施工】安藤建設株式会社
【設計】荻上建築事務所 ※駐輪場・バイク置き場・駐車場の空き状況等詳細につきましてはお問い合わせください。
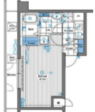
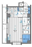
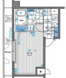
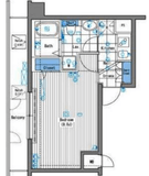
エレベーター,オートロック,宅配ボックス,TVドアホン,駐車場,大型駐車場,バイク置き場,駐輪場,コンシェルジュ,敷地内ゴミ置き場,内廊下,24時間管理,防犯カメラ,BS,CS,CATV,インターネット
※掲載情報が現況と異なる場合は、現況を優先させていただきます。
※キャンペーン情報は予告なく変更・終了する場合がございます。詳細はお問い合わせください。
※部屋により敷金・礼金・キャンペーンの内容が異なる場合がございますので、詳しい情報は各部屋ページにてご確認ください。
※分譲賃貸は部屋によって所有者が異なる為、内装や設備が変更されている場合がございます。
※ペットの飼育やSOHO利用に関しては、建物自体が許可を出していても、所有者の意向により禁止とされている場合もございますのでご注意ください。
(50代/男性/1K)
2018/01/12
セキュリティがしっかりしている印象。
管理状態も良く駅へのアクセスも良い。
近隣に買物ができる施設があり便利。
高橋(男性)
2017/12/03
物件は都営三田線「三田駅」徒歩5分、都営三田線「芝公園駅」徒歩7分の場所に位置しています。
周辺にはスーパー、コンビニ、ドラッグストア、郵便局などがありました。
コンシェルジュが出迎えるエントランスに入ると、お洒落にデザインされた空間が広がっています。
今回ご案内した上層階は東京タワーが中心に見える大きな窓と広いルーフバルコニーがあり、夜景が一望できる贅沢なお部屋でした。
三田・芝公園エリアでの贅沢な一人暮らしにおすすめの物件です。
※これらの口コミは、ご成約者様や営業スタッフによる主観的な意見や感想です。建物の価値を客観的に評価するものではありません。あくまでも一つの参考としてご活用ください。
空室確認・内覧予約・空き待ちをご希望のお客様は、こちらよりお気軽にお問い合わせください。
03-6890-7755
