

仲介手数料無料キャンペーン中です。
※キャンペーン内容は売買、賃貸、お部屋により異なります。
備考:
【駐車場】平置き2台 28,000円/月(税抜)
【バイク置き場】平置き5台 3,000/月(税抜)
【駐輪場】59台 300円/月(税抜) ※駐輪場・バイク置き場・駐車場の空き状況等詳細につきましてはお問い合わせください。
エレベーター,オートロック,宅配ボックス,TVドアホン,駐車場,大型駐車場,駐輪場,敷地内ゴミ置き場,防犯カメラ,BS,CS,CATV,インターネット
※掲載情報が現況と異なる場合は、現況を優先させていただきます。
※キャンペーン情報は予告なく変更・終了する場合がございます。詳細はお問い合わせください。
※部屋により敷金・礼金・キャンペーンの内容が異なる場合がございますので、詳しい情報は各部屋ページにてご確認ください。
※分譲賃貸は部屋によって所有者が異なる為、内装や設備が変更されている場合がございます。
※ペットの飼育やSOHO利用に関しては、建物自体が許可を出していても、所有者の意向により禁止とされている場合もございますのでご注意ください。
中川(女性)
2021/08/20
「菊川駅」と「森下駅」から徒歩圏内にある物件で、今回は菊川駅から向かいました。
近くに大通りが通っておりますが、通りよりも内側に本物件はございましたので、周辺環境は静かでした。
エントランスや外観はモノクロでシックな印象でしたが、室内は日当たりの良さが感じられ、とても明るかったです。
6階以上のお部屋は白基調でしたので、より明るく感じました。
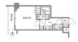
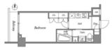
今回は1K 8帖のお部屋をご案内しましたが、収納がしっかり確保されており、お部屋を広く使えます。
大型スーパーや飲食店も数多くございますので、充実した新生活を過ごせそうです。
※これらの口コミは、ご成約者様や営業スタッフによる主観的な意見や感想です。建物の価値を客観的に評価するものではありません。あくまでも一つの参考としてご活用ください。
空室確認・内覧予約・空き待ちをご希望のお客様は、こちらよりお気軽にお問い合わせください。
03-6890-7755