

エレベーター,オートロック,宅配ボックス,TVドアホン,駐車場,大型駐車場,駐輪場,敷地内ゴミ置き場,内廊下,防犯カメラ,BS,CS,CATV,インターネット
※掲載情報が現況と異なる場合は、現況を優先させていただきます。
※キャンペーン情報は予告なく変更・終了する場合がございます。詳細はお問い合わせください。
※部屋により敷金・礼金・キャンペーンの内容が異なる場合がございますので、詳しい情報は各部屋ページにてご確認ください。
※分譲賃貸は部屋によって所有者が異なる為、内装や設備が変更されている場合がございます。
※ペットの飼育やSOHO利用に関しては、建物自体が許可を出していても、所有者の意向により禁止とされている場合もございますのでご注意ください。
吉田
2022/06/26
東京メトロ東西線「神楽坂駅」より徒歩2分、創建700年を超える赤城神社の傍らに広がる、閑静な住宅街に物件はございました。
少し足を延ばせば5路線利用ができる「飯田橋駅」や、都営大江戸線「牛込神楽坂駅」へもアクセス可能。
神楽坂商店街も近く、高い利便性と落ち着いた住環境のどちらも享受することができます。
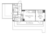
地上6階建て総戸数55の当物件は、1DK~2LDKの間取りがあり、単身からファミリーまで幅広いニーズに応えます。
今回内覧した1LDKのお部屋は、食洗機、床暖房、浄水器など分譲ならではの設備が整い、WICがある点も嬉しいポイントです。
向かいの建物と被り眺望はあいにくでしたが、角部屋で室内が充分明るい点はお客様も喜んでおられました。
前嶋(女性)
2021/02/16
東京メトロ東西線「神楽坂駅」徒歩2分、他にも「牛込神楽坂駅」「飯田橋駅」「江戸川橋駅」といった人気の駅が徒歩圏内にあり、都内各地へのアクセスが抜群です。
神楽坂通り商店街には、お気に入りの穴場スポットを見つけたくなるような飲食店が建ち並んでいました。
神楽坂の路地裏散歩を楽しむ感覚で物件に到着すると、高級感のあるエントランスホールが出迎えてくれました。
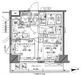
お料理好きの方には嬉しい、広々としたカウンターキッチン、食洗機、また床暖房が付いており「ピアース」シリーズの当物件は、高級分譲賃貸ならではの設備を備えたマンションです。
※これらの口コミは、ご成約者様や営業スタッフによる主観的な意見や感想です。建物の価値を客観的に評価するものではありません。あくまでも一つの参考としてご活用ください。
空室確認・内覧予約・空き待ちをご希望のお客様は、こちらよりお気軽にお問い合わせください。
03-6890-7755
