

仲介手数料無料+礼金0キャンペーン中です。
※キャンペーン内容は売買、賃貸、お部屋により異なります。
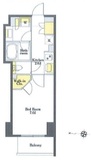
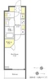
エレベーター,オートロック,宅配ボックス,TVドアホン,駐輪場,敷地内ゴミ置き場,内廊下,防犯カメラ,BS,CS,CATV,閑静な住宅街
※掲載情報が現況と異なる場合は、現況を優先させていただきます。
※キャンペーン情報は予告なく変更・終了する場合がございます。詳細はお問い合わせください。
※部屋により敷金・礼金・キャンペーンの内容が異なる場合がございますので、詳しい情報は各部屋ページにてご確認ください。
※分譲賃貸は部屋によって所有者が異なる為、内装や設備が変更されている場合がございます。
※ペットの飼育やSOHO利用に関しては、建物自体が許可を出していても、所有者の意向により禁止とされている場合もございますのでご注意ください。
松野(男性)
2017/04/24
都営大江戸線「牛込柳町駅」東口出口から大久保通り沿いに物件は位置します。
駅から物件まで3分程の好立地で、駅を出てからは道のりに薬局や飲食店、コンビニなどがあり便利な印象です。
一方で新宿に近いエリアにもかかわらず、のどかで落ち着きのある雰囲気を感じるエリアでした。
今回ご案内したお部屋は、透き通るような白いフローリングに、南向きの日当たりの良さを更に増してくれる空間となっていました。
カウンターキッチンからは室内を隈なく見渡せ、その先にはスカイツリーが望める間取りでした。
富川
2015/11/06
内覧会に行って参りました。
牛込柳町駅を出て大久保通り沿いに3分と駅至近の立地にございます。
2重セキュリティシステム、内廊下仕様となっており女性の方でも安心してお住まいいただけるなと感じました。
南住戸は日当たりも良く高層階のお部屋からはスカイツリーを望む事が可能でした。
フローリングカラーによって室内の雰囲気もそれぞれ異なりますので、家具をイメージしながらのお部屋選びが楽しめそうです。
※これらの口コミは、ご成約者様や営業スタッフによる主観的な意見や感想です。建物の価値を客観的に評価するものではありません。あくまでも一つの参考としてご活用ください。
空室確認・内覧予約・空き待ちをご希望のお客様は、こちらよりお気軽にお問い合わせください。
03-6890-7755