

仲介手数料無料キャンペーン中です。
※キャンペーン内容は売買、賃貸、お部屋により異なります。
オートロック,宅配ボックス,TVドアホン,敷地内ゴミ置き場,防犯カメラ,BS,CS,CATV,インターネット,閑静な住宅街
※掲載情報が現況と異なる場合は、現況を優先させていただきます。
※キャンペーン情報は予告なく変更・終了する場合がございます。詳細はお問い合わせください。
※部屋により敷金・礼金・キャンペーンの内容が異なる場合がございますので、詳しい情報は各部屋ページにてご確認ください。
※分譲賃貸は部屋によって所有者が異なる為、内装や設備が変更されている場合がございます。
※ペットの飼育やSOHO利用に関しては、建物自体が許可を出していても、所有者の意向により禁止とされている場合もございますのでご注意ください。
斎藤(男性)
2020/03/22
目黒駅から行人坂を下り、お花見で有名な目黒川を渡った先の閑静な住宅街に物件はございます。
外観はダークカラーでまとまった重厚感のあるデザインでした。
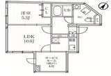
お部屋は1Rから1LDKの間取りをご用意しており、宅配BOXや浴室乾燥、追い焚き機能付きバスなどの設備が整っておりました。
室内は天井や壁の一部がコンクリート打ちっぱなしのおしゃれな造りになっておりましたが、間取りはシンプルで使いやすい間取りのため幅広いニーズに応えられる物件という印象です。
※これらの口コミは、ご成約者様や営業スタッフによる主観的な意見や感想です。建物の価値を客観的に評価するものではありません。あくまでも一つの参考としてご活用ください。
空室確認・内覧予約・空き待ちをご希望のお客様は、こちらよりお気軽にお問い合わせください。
03-6890-7755