BPRレジデンス門前仲町 成約済み物件 (7381-301)

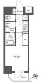
  • BPRレジデンス門前仲町 301 間取り図
  • BPRレジデンス門前仲町 外観
  • BPRレジデンス門前仲町 写真
  • BPRレジデンス門前仲町 画像
  • BPRレジデンス門前仲町 外観 物件画像4
  • BPRレジデンス門前仲町 外観 物件画像5
建物詳細ページを見る

物件概要

物件名
BPRレジデンス門前仲町
賃料
---円
共益費/
管理費
---円
敷金
---ヶ月
礼金
---ヶ月
仲介
手数料
---ヶ月
フリー
レント
---ヶ月
その他費用
---
間取り
1K
(洋室7.5帖)
専有面積
25.46m2
所在階/
総階数
3階/地上12階 
入居
可能時期
---
情報登録日
2024年3月7日
情報更新日
2024年4月9日
所在地
東京都江東区佐賀1丁目5-2地図
交通
都営大江戸線門前仲町駅」徒歩8分
東京メトロ東西線門前仲町駅」徒歩8分
都営浅草線日本橋駅」徒歩12分
東京メトロ日比谷線茅場町駅」徒歩12分
問合番号
7381-301
物件特徴
ペット可
更新料
---ヶ月
築年月
2020年2月
総戸数
107戸
建物構造
RC造
保険
要加入
保証会社
利用必須
方角
北西
契約形態
普通賃貸借契約
ペット
可 敷金1ヶ月積み増し
SOHO・
事務所
不可 
取引態様
媒介

備考:

more

建物設備

エレベーター,オートロック,宅配ボックス,TVドアホン,バイク置き場,駐輪場,敷地内ゴミ置き場,防犯カメラ,BS,CS,CATV,インターネット,閑静な住宅街

部屋設備

独立洗面台,ウォシュレット,浴室乾燥機,システムキッチン,ガスコンロ,エアコン,ダブルロックキー,フローリング

※掲載情報が現況と異なる場合は、現況を優先させていただきます。
※キャンペーン情報は予告なく変更・終了する場合がございます。詳細はお問い合わせください。
※部屋により敷金・礼金・キャンペーンの内容が異なる場合がございますので、詳しい情報は各部屋ページにてご確認ください。
※分譲賃貸は部屋によって所有者が異なる為、内装や設備が変更されている場合がございます。
※ペットの飼育やSOHO利用に関しては、建物自体が許可を出していても、所有者の意向により禁止とされている場合もございますのでご注意ください。

おすすめ物件情報

閉じる

検討中リストに追加しました。

ページ上部の検討中リストより、追加した部屋情報が確認できます。

ページ上部の検討中リストより、追加した部屋情報が確認できます。