メイングランディア浅草 成約済み物件 (6821-505)

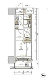
  • メイングランディア浅草 5階 間取り図
  • メイングランディア浅草 学区域
  • メイングランディア浅草 写真
  • メイングランディア浅草 物件写真 建物写真3
  • メイングランディア浅草 物件写真 建物写真4
  • メイングランディア浅草 物件写真 建物写真5
建物詳細ページを見る

物件概要

物件名
メイングランディア浅草
賃料
---円
共益費/
管理費
---円
敷金
---ヶ月
礼金
---ヶ月
仲介
手数料
---ヶ月
フリー
レント
---ヶ月
その他費用
---
間取り
1K
(洋室7.7帖)
専有面積
25.71m2
所在階/
総階数
5階/地上14階 地下1階
入居
可能時期
---
情報登録日
2025年10月26日
情報更新日
2025年10月26日
所在地
東京都台東区千束1-2-9地図
交通
東京メトロ日比谷線入谷駅」徒歩12分
東京メトロ銀座線田原町駅」徒歩13分


問合番号
6821-505
物件特徴
ペット可、分譲賃貸
更新料
---ヶ月
築年月
2015年12月
総戸数
63戸
建物構造
RC造
保険
要加入
保証会社
利用必須
方角
契約形態
普通賃貸借契約
ペット
可 
SOHO・
事務所
不可 
取引態様
媒介

備考:

more

建物設備

エレベーター,オートロック,宅配ボックス,TVドアホン,駐輪場,ラウンジ,敷地内ゴミ置き場,防犯カメラ,BS,CS,CATV,インターネット

部屋設備

独立洗面台,ウォシュレット,浴室乾燥機,システムキッチン,ガスコンロ,エアコン,ダブルロックキー,フローリング

募集中住戸一覧

1室表示

チェックした部屋について

問い合わせる 検討中リストに追加

※掲載情報が現況と異なる場合は、現況を優先させていただきます。
※キャンペーン情報は予告なく変更・終了する場合がございます。詳細はお問い合わせください。
※部屋により敷金・礼金・キャンペーンの内容が異なる場合がございますので、詳しい情報は各部屋ページにてご確認ください。
※分譲賃貸は部屋によって所有者が異なる為、内装や設備が変更されている場合がございます。
※ペットの飼育やSOHO利用に関しては、建物自体が許可を出していても、所有者の意向により禁止とされている場合もございますのでご注意ください。

おすすめ物件情報

最近見た物件

閉じる

検討中リストに追加しました。

ページ上部の検討中リストより、追加した部屋情報が確認できます。

ページ上部の検討中リストより、追加した部屋情報が確認できます。