

備考:
【駐車場】タワー式52,000円~/月額
全長5,300mm 全幅2,050mm 高さ1,550mm 重量2,300mm
【バイク置き場】 有
【駐輪場】屋内 1,000円~/月額(年一括払い)
【コンシェルジュサービス】
来訪者の受付・案内
共用施設の予約
宅配便の一時預かりサービス
タクシー手配サービス
クリ―ニング取次サービス
各業者紹介サービス
メッセージ預かり
【共用施設】
・ラウンジ
・ゲストルーム ※駐輪場・バイク置き場・駐車場の空き状況等詳細につきましてはお問い合わせください。
エレベーター,オートロック,宅配ボックス,TVドアホン,トランクルーム,駐車場,大型駐車場,バイク置き場,駐輪場,ラウンジ,コンシェルジュ,敷地内ゴミ置き場,各階ゴミ置き場,内廊下,24時間管理,防犯カメラ,BS,CS,CATV,インターネット,免震・制震
※掲載情報が現況と異なる場合は、現況を優先させていただきます。
※キャンペーン情報は予告なく変更・終了する場合がございます。詳細はお問い合わせください。
※部屋により敷金・礼金・キャンペーンの内容が異なる場合がございますので、詳しい情報は各部屋ページにてご確認ください。
※分譲賃貸は部屋によって所有者が異なる為、内装や設備が変更されている場合がございます。
※ペットの飼育やSOHO利用に関しては、建物自体が許可を出していても、所有者の意向により禁止とされている場合もございますのでご注意ください。
南条(男性)
2021/01/15
「青山一丁目駅」4番出口より徒歩2分と利便性に優れおり、様々な庭園・公園が周辺にあるため自然を感じることができます。
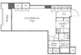
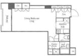
ご案内した19階のお部屋は82.64㎡の1LDKで、とてもリビングが広く、とても開放感がございました。
周辺は高い建物に囲まれておらず、眺望が抜けており、タワーマンションならではの眺望を望むことができます。
※これらの口コミは、ご成約者様や営業スタッフによる主観的な意見や感想です。建物の価値を客観的に評価するものではありません。あくまでも一つの参考としてご活用ください。
空室確認・内覧予約・空き待ちをご希望のお客様は、こちらよりお気軽にお問い合わせください。
03-6890-7755
