アスール北上野 成約済み物件 (5956-702)

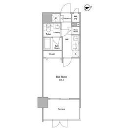
  • アスール北上野 702 間取り図
  • アスール北上野 画像
  • アスール北上野 写真
  • アスール北上野 外観 物件画像3
  • アスール北上野 外観 物件画像4
  • アスール北上野 外観 物件画像5
建物詳細ページを見る

物件概要

物件名
アスール北上野
賃料
---円
共益費/
管理費
---円
敷金
---ヶ月
礼金
---ヶ月
仲介
手数料
---ヶ月
フリー
レント
---ヶ月
その他費用
---
間取り
1K
(洋室7.9帖)
専有面積
25.8m2
所在階/
総階数
7階/地上13階 
入居
可能時期
---
情報登録日
2018年9月21日
情報更新日
2019年11月11日
所在地
東京都台東区北上野2-9-5地図
交通
東京メトロ日比谷線入谷駅」徒歩5分
JR山手線上野駅」徒歩10分
東京メトロ銀座線上野駅」徒歩10分
東京メトロ銀座線稲荷町駅」徒歩10分
問合番号
5956-702
物件特徴
なし
更新料
---ヶ月
築年月
2018年7月
総戸数
49戸
建物構造
RC造
保険
要加入
保証会社
利用可能
方角
契約形態
普通賃貸借契約
ペット
不可 
SOHO・
事務所
不可 
取引態様
媒介

備考:

more

建物設備

エレベーター,オートロック,宅配ボックス,TVドアホン,バイク置き場,駐輪場,敷地内ゴミ置き場,防犯カメラ,BS,CS,CATV,インターネット,閑静な住宅街

部屋設備

独立洗面台,追い焚き,ウォシュレット,浴室乾燥機,システムキッチン,ガスコンロ,エアコン,ダブルロックキー,フローリング

※掲載情報が現況と異なる場合は、現況を優先させていただきます。
※キャンペーン情報は予告なく変更・終了する場合がございます。詳細はお問い合わせください。
※部屋により敷金・礼金・キャンペーンの内容が異なる場合がございますので、詳しい情報は各部屋ページにてご確認ください。
※分譲賃貸は部屋によって所有者が異なる為、内装や設備が変更されている場合がございます。
※ペットの飼育やSOHO利用に関しては、建物自体が許可を出していても、所有者の意向により禁止とされている場合もございますのでご注意ください。

おすすめ物件情報

閉じる

検討中リストに追加しました。

ページ上部の検討中リストより、追加した部屋情報が確認できます。

ページ上部の検討中リストより、追加した部屋情報が確認できます。