

エレベーター,オートロック,宅配ボックス,TVドアホン,バイク置き場,駐輪場,敷地内ゴミ置き場,防犯カメラ,BS,CS,CATV,インターネット
※掲載情報が現況と異なる場合は、現況を優先させていただきます。
※キャンペーン情報は予告なく変更・終了する場合がございます。詳細はお問い合わせください。
※部屋により敷金・礼金・キャンペーンの内容が異なる場合がございますので、詳しい情報は各部屋ページにてご確認ください。
※分譲賃貸は部屋によって所有者が異なる為、内装や設備が変更されている場合がございます。
※ペットの飼育やSOHO利用に関しては、建物自体が許可を出していても、所有者の意向により禁止とされている場合もございますのでご注意ください。
木野内(女性)
2018/09/26
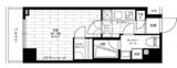
両国駅A2出口を降り、錦糸町方面へ向かう大通り沿いをしばらく歩くと物件に到着しました。錦糸町駅と両国駅の真ん中あたりに位置し、物件までの道のりがとても分かりやすかったです。周辺は低層の物件が多く、一部住戸からはスカイツリーが綺麗に見えました。上部アッパーキャビネットが備わっているところや、斜めに広く設けられたバスタブなどはアジールコートならではの造りだなと思いました。
※これらの口コミは、ご成約者様や営業スタッフによる主観的な意見や感想です。建物の価値を客観的に評価するものではありません。あくまでも一つの参考としてご活用ください。
空室確認・内覧予約・空き待ちをご希望のお客様は、こちらよりお気軽にお問い合わせください。
03-6890-7755
