

エレベーター,オートロック,宅配ボックス,TVドアホン,駐輪場,敷地内ゴミ置き場,内廊下,防犯カメラ,BS,CS,CATV,インターネット,閑静な住宅街,楽器可
※掲載情報が現況と異なる場合は、現況を優先させていただきます。
※キャンペーン情報は予告なく変更・終了する場合がございます。詳細はお問い合わせください。
※部屋により敷金・礼金・キャンペーンの内容が異なる場合がございますので、詳しい情報は各部屋ページにてご確認ください。
※分譲賃貸は部屋によって所有者が異なる為、内装や設備が変更されている場合がございます。
※ペットの飼育やSOHO利用に関しては、建物自体が許可を出していても、所有者の意向により禁止とされている場合もございますのでご注意ください。
(40代/男性/2LDK)
2022/03/29
周りにに高い建物がなく眺めが良い。
室内の採光も良く、内装のカラーも気に入った。
高橋(男性)
2017/12/10
東京メトロ南北線・有楽町線「市ヶ谷駅」から、飲食店が並ぶ外堀通りを抜けて徒歩7分、かつて大名屋敷が建ち並んでいた新宿区払方町の閑静な住宅街に位置しています。
都営大江戸線「牛込神楽坂駅」、東京メトロ東西線「神楽坂駅」も徒歩圏内で、都心ならではのアクセスの良さを感じます。
サンピエス市ヶ谷はペット可、SOHO可で様々なニーズに応え、ホテルのような内廊下になっています。
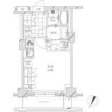
お部屋は広いキッチンスペースとお風呂が特徴的で、角部屋はお風呂に窓もついていました。
都心のアクセスとゆったり流れるスローライフを求めるお客様にはおすすめの物件です。
※これらの口コミは、ご成約者様や営業スタッフによる主観的な意見や感想です。建物の価値を客観的に評価するものではありません。あくまでも一つの参考としてご活用ください。
空室確認・内覧予約・空き待ちをご希望のお客様は、こちらよりお気軽にお問い合わせください。
03-6890-7755