

仲介手数料OFFキャンペーン中です。
※キャンペーン内容は売買、賃貸、お部屋により異なります。
備考:
【駐車場】平置き24台、機械式242台 EV充電対応7台
44,000円~60,000円/月額(税別)
【バイク置き場】37台 2,000~3,000円/月額
【駐輪場】513台 200~400円/月額
【レンタサイクル】電動アシスト付き20台
【コンシェルジュサービス】24時間
訪者の受付・案内
共用施設の予約
宅配便の一時預かりサービス
タクシー手配サービス
クリ―ニング取次サービス
各業者紹介サービス
メッセージ預かり
【ポーターサービス】
【共有施設】
◇2階
・ラウンジ
・ライブラリー
◇3階
・パーティルーム
・カフェラウンジ
・フィットネスルーム
・ゲストルーム
・キッズルーム
・ミュージックルーム
・サウンドスタジオ
・キッズルーム
・スタディルーム
・コミュニティールーム
・ルーフガーデン
・スカイテラス
・ITルーム
【近隣のタワーマンションもご覧下さい】
プラウドタワー千代田富士見プラウドタワー千代田富士見レジデンス ※駐輪場・バイク置き場・駐車場の空き状況等詳細につきましてはお問い合わせください。
エレベーター,オートロック,宅配ボックス,TVドアホン,トランクルーム,駐車場,大型駐車場,バイク置き場,駐輪場,ラウンジ,キッズルーム,コンシェルジュ,フィットネスジム,ゲストルーム,パーティールーム,敷地内ゴミ置き場,各階ゴミ置き場,内廊下,24時間管理,防犯カメラ,BS,CATV,インターネット,閑静な住宅街
※掲載情報が現況と異なる場合は、現況を優先させていただきます。
※キャンペーン情報は予告なく変更・終了する場合がございます。詳細はお問い合わせください。
※部屋により敷金・礼金・キャンペーンの内容が異なる場合がございますので、詳しい情報は各部屋ページにてご確認ください。
※分譲賃貸は部屋によって所有者が異なる為、内装や設備が変更されている場合がございます。
※ペットの飼育やSOHO利用に関しては、建物自体が許可を出していても、所有者の意向により禁止とされている場合もございますのでご注意ください。
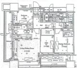
(20代/男性/3LDK)
2016/04/22
完璧。
建物共用部は、便利な施設が多かったです。
充実していました。
スタディルームは驚きました。
設備や内装は特に問題ないと思います。
成約に至った理由は、対応が非常に良かったから。
他物件の問題点が解消されていたから。
石川(男性)
2016/04/10
飯田橋駅から徒歩数分の距離となっており、エントランス前は並木道になっており
春には桜も満開になりますので四季を感じとても穏やかな雰囲気でした。
エンタランスの裏手には、広々とした車寄せがあり、駐車場の入り口も2箇所ございますので
大変便利です。
エントランスをくぐるとロビーにはコンシェルジュの方がお出迎えしてくれ警備の方もいますので、セキュリティー面は万全です。
また3階部分には様々な共用施設があり、入居者様の生活を様々な面でサポートしております。
珍しいサービスとしてミュージックルームがありますので、入居者様には重宝されているようです。
※これらの口コミは、ご成約者様や営業スタッフによる主観的な意見や感想です。建物の価値を客観的に評価するものではありません。あくまでも一つの参考としてご活用ください。
空室確認・内覧予約・空き待ちをご希望のお客様は、こちらよりお気軽にお問い合わせください。
03-6890-7755
