

仲介手数料無料+礼金0キャンペーン中です。
※キャンペーン内容は売買、賃貸、お部屋により異なります。
備考:
【駐車場】30,000円/月額(税別)
【バイク置き場】ミニバイクのみ 3,000円/月額(税別)
【駐輪場】初回登録料 3,000円(税別) ※駐輪場・バイク置き場・駐車場の空き状況等詳細につきましてはお問い合わせください。
エレベーター,オートロック,宅配ボックス,TVドアホン,駐車場,大型駐車場,バイク置き場,駐輪場,敷地内ゴミ置き場,防犯カメラ,BS,CS,CATV,インターネット,閑静な住宅街
※掲載情報が現況と異なる場合は、現況を優先させていただきます。
※キャンペーン情報は予告なく変更・終了する場合がございます。詳細はお問い合わせください。
※部屋により敷金・礼金・キャンペーンの内容が異なる場合がございますので、詳しい情報は各部屋ページにてご確認ください。
※分譲賃貸は部屋によって所有者が異なる為、内装や設備が変更されている場合がございます。
※ペットの飼育やSOHO利用に関しては、建物自体が許可を出していても、所有者の意向により禁止とされている場合もございますのでご注意ください。
(30代/男性/2LDK)
2019/08/18
駅に近くて便利。
内装は劣化が早そうだが、設備は良い。
(20代/男性/2LDK)
2017/11/29
室内がきれい。
街の雰囲気も良く付近の環境も良い。
田中(男性)
2017/11/02
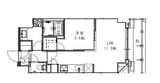
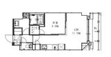
内覧会へいって参りました。東京メトロ千代田線「千駄木駅」より徒歩3分の場所に建つ低層の新築マンションです。間取りは1K~2LDKのタイプがあり、単身の方からファミリーの方までお住いになれます。周辺に高い建物が少ないので街全体を見渡すことができ、上層階の東向きのお部屋からは、スカイツリーを望めました。
※これらの口コミは、ご成約者様や営業スタッフによる主観的な意見や感想です。建物の価値を客観的に評価するものではありません。あくまでも一つの参考としてご活用ください。
空室確認・内覧予約・空き待ちをご希望のお客様は、こちらよりお気軽にお問い合わせください。
03-6890-7755