

備考:
【駐車場】機械式駐車場32台、機械式・電気自動車対応3台、他来客用駐車場1台
【バイク置き場】有
【駐輪場】サイクルトランクルーム35台 3,300円~3,960円/月額(税別)
※駐輪場・バイク置き場・駐車場の空き状況等詳細につきましてはお問い合わせください。
エレベーター,オートロック,宅配ボックス,TVドアホン,トランクルーム,駐車場,大型駐車場,バイク置き場,駐輪場,ラウンジ,コンシェルジュ,敷地内ゴミ置き場,内廊下,24時間管理,防犯カメラ,BS,CS,CATV,インターネット,閑静な住宅街
※掲載情報が現況と異なる場合は、現況を優先させていただきます。
※キャンペーン情報は予告なく変更・終了する場合がございます。詳細はお問い合わせください。
※部屋により敷金・礼金・キャンペーンの内容が異なる場合がございますので、詳しい情報は各部屋ページにてご確認ください。
※分譲賃貸は部屋によって所有者が異なる為、内装や設備が変更されている場合がございます。
※ペットの飼育やSOHO利用に関しては、建物自体が許可を出していても、所有者の意向により禁止とされている場合もございますのでご注意ください。
田中(男性)
2017/11/12
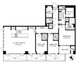
3LDKのお部屋のご案内へ行ってまいりました。「六本木駅」徒歩4分の場所に建つ新築マンションです。
グレーを基調とした配色で低層ではありますが、存在感のある建物です。建物内は、エントランスと各フロアごとにオートロック、さらに内廊下設計なので防犯面が整っていました。交通量の多い六本木通りが至近にございますが、非常に閑静な住宅地です。
※これらの口コミは、ご成約者様や営業スタッフによる主観的な意見や感想です。建物の価値を客観的に評価するものではありません。あくまでも一つの参考としてご活用ください。
空室確認・内覧予約・空き待ちをご希望のお客様は、こちらよりお気軽にお問い合わせください。
03-6890-7755
