

仲介手数料無料+礼金0キャンペーン中です。
※キャンペーン内容は売買、賃貸、お部屋により異なります。
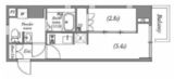
備考:
【駐車場】2台 30,000円/月額(税別)
【バイク置き場】2台 3,000円/月額(税別)
【駐輪場】平置き・ラック式 39台 300円/月額(税別) ※駐輪場・バイク置き場・駐車場の空き状況等詳細につきましてはお問い合わせください。
エレベーター,オートロック,宅配ボックス,TVドアホン,駐車場,大型駐車場,バイク置き場,駐輪場,敷地内ゴミ置き場,防犯カメラ,BS,CS,CATV,インターネット,閑静な住宅街
※掲載情報が現況と異なる場合は、現況を優先させていただきます。
※キャンペーン情報は予告なく変更・終了する場合がございます。詳細はお問い合わせください。
※部屋により敷金・礼金・キャンペーンの内容が異なる場合がございますので、詳しい情報は各部屋ページにてご確認ください。
※分譲賃貸は部屋によって所有者が異なる為、内装や設備が変更されている場合がございます。
※ペットの飼育やSOHO利用に関しては、建物自体が許可を出していても、所有者の意向により禁止とされている場合もございますのでご注意ください。
林田(男性)
2021/01/18
都営大江戸線清澄白河駅より徒歩10分
大通りより1本中に入ったところに物件はございます。
エントランスを抜け、お部屋までは内廊下となりホテル感を演出しています。
1Kタイプのお部屋をご案内しましたが、物件資料に記載されてた広さよりも更に広く感じ、家具の配置に困らない間取りです。
キッチンも広く、まな板を置くスペースもしっかりございますので、お料理をされる方にはオススメです。
近くには公園も点在してますので、お休みの日にはのんびりとお散歩してみてはいかがでしょうか。
(30代/女性/1K)
2020/12/18
お部屋が綺麗で自分が希望している条件とマッチした物件が見つかりました。室内も綺麗で設備が十分に揃っています。迅速に対応してくださりありがとうございます。
(20代/男性/1K)
2018/12/01
部屋が非常に綺麗で高級感があった。
※これらの口コミは、ご成約者様や営業スタッフによる主観的な意見や感想です。建物の価値を客観的に評価するものではありません。あくまでも一つの参考としてご活用ください。
空室確認・内覧予約・空き待ちをご希望のお客様は、こちらよりお気軽にお問い合わせください。
03-6890-7755