

仲介手数料無料キャンペーン中です。
※キャンペーン内容は売買、賃貸、お部屋により異なります。
備考:
【駐車場】Mサイズ54台 22,000円/月額(税別)Lサイズ51台 25,000円/月額(税別) 平置き1台 30,000円
【バイク置場】24台 5,000円/月額(税別)
【駐車場】無料(部屋の規模により台数限定有)
【トランクルーム】3,000~13,000円/月額(税別) ※駐輪場・バイク置き場・駐車場の空き状況等詳細につきましてはお問い合わせください。
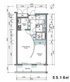
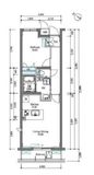
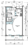
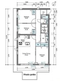
エレベーター,オートロック,宅配ボックス,TVドアホン,トランクルーム,駐車場,大型駐車場,バイク置き場,駐輪場,コンシェルジュ,敷地内ゴミ置き場,24時間管理,防犯カメラ,BS,CS,CATV,インターネット
※掲載情報が現況と異なる場合は、現況を優先させていただきます。
※キャンペーン情報は予告なく変更・終了する場合がございます。詳細はお問い合わせください。
※部屋により敷金・礼金・キャンペーンの内容が異なる場合がございますので、詳しい情報は各部屋ページにてご確認ください。
※分譲賃貸は部屋によって所有者が異なる為、内装や設備が変更されている場合がございます。
※ペットの飼育やSOHO利用に関しては、建物自体が許可を出していても、所有者の意向により禁止とされている場合もございますのでご注意ください。
(30代/男性/1LDK)
2023/03/27
駐車場が多いところと、バーベキューテラスが魅力的でした
萩野(男性)
2016/02/07
物件は閑静な住宅地に位置し、税務署通り・小滝橋通りのどちらからでも向かい易い立地でした。豪華なエントランスを入るとコンシェルジュが出迎え、その先にあるラウンジにはソファー、テレビが設置されていました。共用部にはフィットネスルーム、パーティールーム、バーベキューガーデンと充実した休日を過ごせる環境がありました。インターネットが無料な所も、住んでみたいと思わせてくれるポイントでした。
※これらの口コミは、ご成約者様や営業スタッフによる主観的な意見や感想です。建物の価値を客観的に評価するものではありません。あくまでも一つの参考としてご活用ください。
空室確認・内覧予約・空き待ちをご希望のお客様は、こちらよりお気軽にお問い合わせください。
03-6890-7755