

仲介手数料無料キャンペーン中です。
※キャンペーン内容は売買、賃貸、お部屋により異なります。
備考:
【駐車場】60台(機械式55台・平置4台・身障者用平置1台)
26,000円~32,000円/月額(税別)
【バイク置き場】有
【駐輪場】215台(2段式)、屋外店舗用8台分(月額使用料/無料)
【トランクルーム】55室 3,000円/月額
【共用施設】
・コンシェルジュサービス(16:00~21:00)
セクレタリーサービス
業者紹介サービス
取次サービス
・ラウンジ
・カーシェアリング
・トレーニングルーム(利用料無料)
※駐輪場・バイク置き場・駐車場の空き状況等詳細につきましてはお問い合わせください。
エレベーター,オートロック,宅配ボックス,TVドアホン,トランクルーム,駐車場,大型駐車場,バイク置き場,駐輪場,ラウンジ,コンシェルジュ,フィットネスジム,カーシェアリング,敷地内ゴミ置き場,各階ゴミ置き場,内廊下,防犯カメラ,BS,CS,CATV,インターネット,免震・制震
※掲載情報が現況と異なる場合は、現況を優先させていただきます。
※キャンペーン情報は予告なく変更・終了する場合がございます。詳細はお問い合わせください。
※部屋により敷金・礼金・キャンペーンの内容が異なる場合がございますので、詳しい情報は各部屋ページにてご確認ください。
※分譲賃貸は部屋によって所有者が異なる為、内装や設備が変更されている場合がございます。
※ペットの飼育やSOHO利用に関しては、建物自体が許可を出していても、所有者の意向により禁止とされている場合もございますのでご注意ください。
押野(女性)
2022/06/25
JR中央・総武線「大久保駅」より徒歩3分の場所に当物件はございました。
駅近かつ大通りのみを通るため、夜遅い時間に帰宅の際も安心出来ます。
エントランスを抜けると、ホテルライクなロビーとコンシェルジュが迎えてくれます。
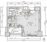
ご案内した1LDKのお部屋は、新宿の街並みが一望出来て、都心のタワーマンションならではの景色でした。
線路が近いため、音の面を心配しておりましたが窓を閉めていればそこまで気になりません。
内装は白を貴重としており、実際の築年数よりも新しく感じました。
寝室は、ベッドだけでなくデスクやサイドテーブルを置いても十分に余る広さで、寝室の形の良さが抜群です。
立地・広さの双方を重視されたい方におすすめの物件です。
※これらの口コミは、ご成約者様や営業スタッフによる主観的な意見や感想です。建物の価値を客観的に評価するものではありません。あくまでも一つの参考としてご活用ください。
空室確認・内覧予約・空き待ちをご希望のお客様は、こちらよりお気軽にお問い合わせください。
03-6890-7755
