

備考:
【駐車場】40台 24,000円/月額(税込)
【バイク置き場】4台 2,000円/月額(税別)
【駐輪場】138台 200~300円/月額(税別) ※駐輪場・バイク置き場・駐車場の空き状況等詳細につきましてはお問い合わせください。
エレベーター,オートロック,宅配ボックス,TVドアホン,駐車場,バイク置き場,駐輪場,敷地内ゴミ置き場,内廊下,24時間管理,防犯カメラ,BS,CS,CATV,インターネット,閑静な住宅街,楽器可
※掲載情報が現況と異なる場合は、現況を優先させていただきます。
※キャンペーン情報は予告なく変更・終了する場合がございます。詳細はお問い合わせください。
※部屋により敷金・礼金・キャンペーンの内容が異なる場合がございますので、詳しい情報は各部屋ページにてご確認ください。
※分譲賃貸は部屋によって所有者が異なる為、内装や設備が変更されている場合がございます。
※ペットの飼育やSOHO利用に関しては、建物自体が許可を出していても、所有者の意向により禁止とされている場合もございますのでご注意ください。
松野(男性)
2018/06/25
JR中央・総武線と大江戸線が利用できる「東中野駅」から徒歩9分ほどの場所に建っていました。
また東京メトロ東西線「落合駅」も利用ができる立地です。
マンションの敷地内は植栽をふんだんに使用し緑豊かになっています。
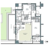
室内は分譲ならではの設備仕様で毎日を快適に過ごせます。
ファミリータイプのお部屋が中心となっていますので、ご家族でのご入居の方にお勧めです。
※これらの口コミは、ご成約者様や営業スタッフによる主観的な意見や感想です。建物の価値を客観的に評価するものではありません。あくまでも一つの参考としてご活用ください。
空室確認・内覧予約・空き待ちをご希望のお客様は、こちらよりお気軽にお問い合わせください。
03-6890-7755
