

仲介手数料無料キャンペーン中です。
※キャンペーン内容は売買、賃貸、お部屋により異なります。
エレベーター,オートロック,宅配ボックス,TVドアホン,駐車場,大型駐車場,バイク置き場,駐輪場,敷地内ゴミ置き場,内廊下,24時間管理,防犯カメラ,BS,CS,CATV,インターネット,閑静な住宅街
※掲載情報が現況と異なる場合は、現況を優先させていただきます。
※キャンペーン情報は予告なく変更・終了する場合がございます。詳細はお問い合わせください。
※部屋により敷金・礼金・キャンペーンの内容が異なる場合がございますので、詳しい情報は各部屋ページにてご確認ください。
※分譲賃貸は部屋によって所有者が異なる為、内装や設備が変更されている場合がございます。
※ペットの飼育やSOHO利用に関しては、建物自体が許可を出していても、所有者の意向により禁止とされている場合もございますのでご注意ください。
木野内(女性)
2017/10/06
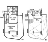
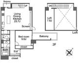
1LDKタイプのお部屋をご案内しました。エントランスは少し暗く重厚感の漂う印象でしたが、一歩室内に入るとリビングの大きな窓から注ぐ光でとても明るく広々としたお部屋でした。デザイナーズという事もあり随所に特徴が見受けられ、デザイナーズ物件好きには心が躍るポイントが多くある印象でした。特にお風呂場はガラス張りで造られており流石だなと思いました。1LDKとはいえ通常よりも平米数が広いため、それぞれの空間がゆとりある設計となっており、全体的に贅沢に空間を造っている素敵な物件でした。
※これらの口コミは、ご成約者様や営業スタッフによる主観的な意見や感想です。建物の価値を客観的に評価するものではありません。あくまでも一つの参考としてご活用ください。
空室確認・内覧予約・空き待ちをご希望のお客様は、こちらよりお気軽にお問い合わせください。
03-6890-7755