

備考:
【駐車場】
機械式(地下に設置)
普通車:42,000円/月額 大型車:47,250円/月額
全長5,050~5,300mm・全幅1,850~2,000mm・全高1,550~2,000mm・重量2,000~2,300kg
【駐輪場】3,600円(年額/月割計算)
【トランクルーム】4,200円~/月額 ※駐輪場・バイク置き場・駐車場の空き状況等詳細につきましてはお問い合わせください。
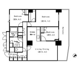
エレベーター,オートロック,宅配ボックス,TVドアホン,トランクルーム,駐車場,大型駐車場,バイク置き場,駐輪場,ラウンジ,コンシェルジュ,敷地内ゴミ置き場,内廊下,オール電化,24時間管理,防犯カメラ,BS,CS,CATV,インターネット,閑静な住宅街
※掲載情報が現況と異なる場合は、現況を優先させていただきます。
※キャンペーン情報は予告なく変更・終了する場合がございます。詳細はお問い合わせください。
※部屋により敷金・礼金・キャンペーンの内容が異なる場合がございますので、詳しい情報は各部屋ページにてご確認ください。
※分譲賃貸は部屋によって所有者が異なる為、内装や設備が変更されている場合がございます。
※ペットの飼育やSOHO利用に関しては、建物自体が許可を出していても、所有者の意向により禁止とされている場合もございますのでご注意ください。
石川(30代/男性)
2015/12/19
品川駅周辺のマンションは駅から遠い印象が有りましたが、港南口を出て徒歩4分程で到着し、便利な立地でした。
また品川駅の港南口を出て、屋根付きスロープを歩いて行くと、マンションに直接入れましたので、雨が降った際には濡れずに駅まで行けて大変便利。
また1階部分にはコンシェルジュも常駐していますので、セキュリティー面は安心な印象です。
※これらの口コミは、ご成約者様や営業スタッフによる主観的な意見や感想です。建物の価値を客観的に評価するものではありません。あくまでも一つの参考としてご活用ください。
空室確認・内覧予約・空き待ちをご希望のお客様は、こちらよりお気軽にお問い合わせください。
03-6890-7755