

備考:
【駐車場】35,000~56,000円/月額
全長5,300mm・全幅1,950mm・全高1,550~2,050mm・重量2,300kg
【バイク置き場】有
【駐輪場】300~500円/月額
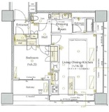
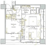
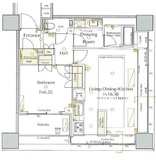
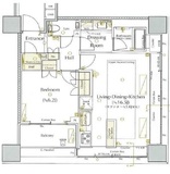
【共用施設】
2階
・エントランスラウンジ
・コンシェルジュサービス
・フィットネスルーム
※駐輪場・バイク置き場・駐車場の空き状況等詳細につきましてはお問い合わせください。
エレベーター,オートロック,宅配ボックス,TVドアホン,トランクルーム,駐車場,大型駐車場,バイク置き場,駐輪場,ラウンジ,コンシェルジュ,フィットネスジム,敷地内ゴミ置き場,各階ゴミ置き場,内廊下,24時間管理,防犯カメラ,BS,CS,CATV,インターネット,免震・制震
※掲載情報が現況と異なる場合は、現況を優先させていただきます。
※キャンペーン情報は予告なく変更・終了する場合がございます。詳細はお問い合わせください。
※部屋により敷金・礼金・キャンペーンの内容が異なる場合がございますので、詳しい情報は各部屋ページにてご確認ください。
※分譲賃貸は部屋によって所有者が異なる為、内装や設備が変更されている場合がございます。
※ペットの飼育やSOHO利用に関しては、建物自体が許可を出していても、所有者の意向により禁止とされている場合もございますのでご注意ください。
富川(男性)
2015/09/20
希少な駅直結マンション。駅まで徒歩1分以内で辿りつける為、雨の日でも濡れる事なく移動が可能な魅力的な物件です。
分譲となり充実した設備も魅力的ですし、コンシェルジュサービスや無料でご利用いただけるフィットネスもございます。
高台に建っている為、高層階の眺望は圧巻の一言です。
近隣ですと「パークタワー高輪」「プラウドタワー白金台」も併せてご検討いただきたい物件です。
※これらの口コミは、ご成約者様や営業スタッフによる主観的な意見や感想です。建物の価値を客観的に評価するものではありません。あくまでも一つの参考としてご活用ください。
空室確認・内覧予約・空き待ちをご希望のお客様は、こちらよりお気軽にお問い合わせください。
03-6890-7755
