

備考:
【駐車場】55台
大型 31,000~36,000円/月額
全長:5,300mm 全幅:1,950mm 全高:1,550mm/2,000mm 重量:2,300kg
普通 24,000~28,000円/月額
全長:4,850mm 全幅:1,850mm 全高:1,550mm/2,000mm 重量:2,000kg
【バイク置場】9台 1,500円/月額(ミニバイク)
【駐輪場】180台(うち、子供用8台)
【コンシェルジュサービス】(1階)
来訪者の受付・案内
共用施設の予約
宅配便の一時預かりサービス
タクシー手配サービス
クリ―ニング取次サービス
各業者紹介サービス
メッセージ預かり ※駐輪場・バイク置き場・駐車場の空き状況等詳細につきましてはお問い合わせください。
エレベーター,オートロック,宅配ボックス,TVドアホン,駐車場,大型駐車場,バイク置き場,駐輪場,敷地内ゴミ置き場,各階ゴミ置き場,内廊下,24時間管理,防犯カメラ,BS,CS,CATV,インターネット,免震・制震
※掲載情報が現況と異なる場合は、現況を優先させていただきます。
※キャンペーン情報は予告なく変更・終了する場合がございます。詳細はお問い合わせください。
※部屋により敷金・礼金・キャンペーンの内容が異なる場合がございますので、詳しい情報は各部屋ページにてご確認ください。
※分譲賃貸は部屋によって所有者が異なる為、内装や設備が変更されている場合がございます。
※ペットの飼育やSOHO利用に関しては、建物自体が許可を出していても、所有者の意向により禁止とされている場合もございますのでご注意ください。
前嶋(女性)
2021/08/15
地上30階建、芝浦エリア最南端に位置する高級分譲賃貸マンションです。
「田町駅」「三田駅」のほか、「高輪ゲートウェイ駅」も徒歩圏内、旧海岸通り沿いに物件がございました。
エントランス周辺には植栽がきれいに整えられ、ベイエリアの雰囲気を演出していました。
ご案内したお部屋は西向きの大きな窓で明るく、緑・川・シティービューが印象的で開放感がありました。
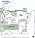
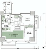
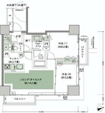
また分譲設備はもちろんのこと、収納が多く、きれいな形の間取りは家具を配置しやすそうです。
(20代/男性/1LDK)
2017/06/28
欲しい条件が揃っていて良かった。
見晴らしも良い。
中原(男性)
2015/09/27
東京ベイエリアに建つ2015年3月完成の分譲賃貸タワーマンション。タワー特有の高級感溢れるエントランス、充実したセキュリティ設備、駐車場やバイク置場など設備は一度住んでみたいと感じさせてくれます。東向きのお部屋から見渡せるお台場方面の景色・眺望は魅力的です。道路幅も広く、周辺も閑静と住環境が整っていますので、ファミリータイプでお探しの方にもお勧めです。
※これらの口コミは、ご成約者様や営業スタッフによる主観的な意見や感想です。建物の価値を客観的に評価するものではありません。あくまでも一つの参考としてご活用ください。
空室確認・内覧予約・空き待ちをご希望のお客様は、こちらよりお気軽にお問い合わせください。
03-6890-7755
