

エレベーター,オートロック,宅配ボックス,TVドアホン,駐輪場,敷地内ゴミ置き場,内廊下,防犯カメラ,BS,CS,CATV,インターネット,閑静な住宅街
※掲載情報が現況と異なる場合は、現況を優先させていただきます。
※キャンペーン情報は予告なく変更・終了する場合がございます。詳細はお問い合わせください。
※部屋により敷金・礼金・キャンペーンの内容が異なる場合がございますので、詳しい情報は各部屋ページにてご確認ください。
※分譲賃貸は部屋によって所有者が異なる為、内装や設備が変更されている場合がございます。
※ペットの飼育やSOHO利用に関しては、建物自体が許可を出していても、所有者の意向により禁止とされている場合もございますのでご注意ください。
(30代/女性/1K)
2021/06/02
目の前のスーパーが充実していて住みやすそうでした。
窓が少し小さいのが気になりましたが、その他はすべてが魅力的です。共用部もキレイで全体的に好印象です。
営業の方は非常にレスポンスが早く非常に丁寧にご対応いただきました。ありがとうございました。
升澤(女性)
2021/05/14
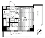
都営三田線、東京メトロ南北線の「白金高輪駅」から徒歩6分という好立地で、桜田通りから一本入ったところに物件はございます。
ご案内したお部屋は、8.6畳ある広めのワンルームで、白を基調としており、部屋に入った瞬間から明るい印象がございました。
梁のない縦長の間取りと広めのクローゼットで使い勝手が大変良さそうでした。
物件の近隣には、2階建ての大きいスーパーがあり、惣菜、パン、生鮮食品がとても充実しておりました。
帰り道に買い物ができて、とても便利な環境だと思います。
※これらの口コミは、ご成約者様や営業スタッフによる主観的な意見や感想です。建物の価値を客観的に評価するものではありません。あくまでも一つの参考としてご活用ください。
空室確認・内覧予約・空き待ちをご希望のお客様は、こちらよりお気軽にお問い合わせください。
03-6890-7755
