

備考:
【駐車場】有:機械式45,000円/月額(税別)
【バイク置き場】有
【駐輪場】有:200円/月額
【共用施設】
・コンシェルジュサービス ※駐輪場・バイク置き場・駐車場の空き状況等詳細につきましてはお問い合わせください。
エレベーター,オートロック,宅配ボックス,TVドアホン,駐車場,バイク置き場,駐輪場,コンシェルジュ,敷地内ゴミ置き場,各階ゴミ置き場,内廊下,24時間管理,防犯カメラ,BS,CS,CATV,インターネット,閑静な住宅街,楽器可,免震・制震
※掲載情報が現況と異なる場合は、現況を優先させていただきます。
※キャンペーン情報は予告なく変更・終了する場合がございます。詳細はお問い合わせください。
※部屋により敷金・礼金・キャンペーンの内容が異なる場合がございますので、詳しい情報は各部屋ページにてご確認ください。
※分譲賃貸は部屋によって所有者が異なる為、内装や設備が変更されている場合がございます。
※ペットの飼育やSOHO利用に関しては、建物自体が許可を出していても、所有者の意向により禁止とされている場合もございますのでご注意ください。
松野(男性)
2018/01/27
東京メトロ千代田線「乃木坂駅」の一番出口から、2分程の場所に建っています。また、「青山一丁目駅」からもアクセスできる位置です。
2駅が10分圏内の最寄のため、多沿線が利用でき利便性に優れたマンションです。
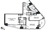
今回ご案内したお部屋は1フロアに2住戸で、2面バルコニーの角部屋でした。
そのため夜景は、都内では珍しい景色でとても綺麗でした。
※これらの口コミは、ご成約者様や営業スタッフによる主観的な意見や感想です。建物の価値を客観的に評価するものではありません。あくまでも一つの参考としてご活用ください。
空室確認・内覧予約・空き待ちをご希望のお客様は、こちらよりお気軽にお問い合わせください。
03-6890-7755
