コンフォリア・リヴ永福町 305

  • 仲介手数料無料
  • 礼金0
  • フリーレント
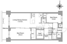
  • コンフォリア・リヴ永福町 305 間取り図
  • コンフォリア・リヴ永福町 物件写真 建物写真1
建物詳細ページを見る

物件概要

物件名
コンフォリア・リヴ永福町
賃料
271,000円
共益費/
管理費
15,000円
敷金
1ヶ月
礼金
0ヶ月
仲介
手数料
0ヶ月
フリー
レント
1ヶ月
間取り
2LDK+WIC+SIC
(LDK13.4帖,洋室6.2帖,洋室4帖)
専有面積
55.64m2
所在階/
総階数
3階/地上6階 
入居
可能時期
即入居
情報登録日
2026年1月16日
情報更新日
2026年3月22日
所在地
東京都杉並区大宮1-2-地図
交通
京王井の頭線永福町駅」徒歩11分
東京メトロ丸ノ内線方南町駅」徒歩13分


問合番号
17660-305
物件特徴
低層マンション、ペット可
更新料
1ヶ月
築年月
2026年2月
総戸数
41戸
建物構造
RC造
保険
要加入
保証会社
利用必須
方角
西
契約形態
普通賃貸借契約
ペット
可 小型犬1匹または猫2匹まで
SOHO・
事務所
不可 
取引態様
媒介

備考:

more

建物設備

エレベーター,オートロック,宅配ボックス,TVドアホン,駐車場,バイク置き場,駐輪場,敷地内ゴミ置き場,防犯カメラ,BS,CS,CATV,インターネット

部屋設備

独立洗面台,追い焚き,ウォシュレット,浴室乾燥機,システムキッチン,カウンターキッチン,食器洗浄機,浄水器,ガスコンロ,エアコン,シューズインクローゼット,ウォークインクローゼット,ダブルロックキー,フローリング

募集中住戸一覧

34室表示

その他31件を表示

チェックした部屋について

問い合わせる 検討中リストに追加

※掲載情報が現況と異なる場合は、現況を優先させていただきます。
※キャンペーン情報は予告なく変更・終了する場合がございます。詳細はお問い合わせください。
※部屋により敷金・礼金・キャンペーンの内容が異なる場合がございますので、詳しい情報は各部屋ページにてご確認ください。
※分譲賃貸は部屋によって所有者が異なる為、内装や設備が変更されている場合がございます。
※ペットの飼育やSOHO利用に関しては、建物自体が許可を出していても、所有者の意向により禁止とされている場合もございますのでご注意ください。

おすすめ物件情報

最近見た物件

コンフォリア・リヴ永福町305について

問い合わせる 電話する 検討中リスト
に追加
閉じる

検討中リストに追加しました。

ページ上部の検討中リストより、追加した部屋情報が確認できます。

ページ上部の検討中リストより、追加した部屋情報が確認できます。