トップへ戻る

ENetial代官山

ENetial代官山

ENetial代官山 動画(2件)

物件概要を見る
  • 借りる(賃貸)
  • 買う(売買)
募集中住戸一覧

0室表示

現在公開中の部屋情報がありません。
最新の情報はこちらからお問い合わせください。

ENetial代官山の最寄り駅 平米単価の相場推移

代官山駅 平米単価チャート

※当社掲載物件の賃料相場になります
※データがない場合は前後でデータを結んでいます

ENetial代官山

渋谷区猿楽町に建つ賃貸マンション「ENetial代官山」東急東横線「代官山駅」徒歩3分の好立地。個性とセンスに満ちた魅力的なスポットです。

物件は地上10階建て総戸数35戸。ルームプランは1DK、1LDK、2LDKを展開。ライフスタイルに合わせて選べるラインナップです。また、ペットの飼育もご相談可能です。

more
  • 借りる(賃貸)
  • 買う(売買)
募集中住戸一覧

0室表示

現在公開中の部屋情報がありません。
最新の情報はこちらからお問い合わせください。

ENetial代官山の最寄り駅 平米単価の相場推移

代官山駅 平米単価チャート

※当社掲載物件の賃料相場になります
※データがない場合は前後でデータを結んでいます

ENetial代官山

渋谷区猿楽町に建つ賃貸マンション「ENetial代官山」東急東横線「代官山駅」徒歩3分の好立地。個性とセンスに満ちた魅力的なスポットです。

物件は地上10階建て総戸数35戸。ルームプランは1DK、1LDK、2LDKを展開。ライフスタイルに合わせて選べるラインナップです。また、ペットの飼育もご相談可能です。

more

物件概要

物件名
ENetial代官山
所在地
東京都渋谷区猿楽町11-8地図
交通
東急東横線代官山駅」徒歩3分



問合番号
17248
物件特徴
なし
賃料
-
共益費/
管理費
-
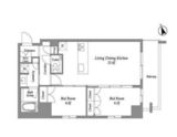
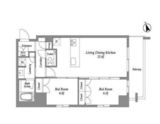
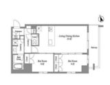
間取り
1DK - 2LDK
専有面積
30.18m2 - 66.15m2
築年月
2025年1月
総階数
地上10階 
総戸数
35戸
建物構造
RC造
通学エリア
小学校
猿楽小学校
取引態様
媒介

備考:

【バイク置場】有
【駐輪場】有 ※駐輪場・バイク置き場・駐車場の空き状況等詳細につきましてはお問い合わせください。

more

建物設備

エレベーター,オートロック,宅配ボックス,TVドアホン,バイク置き場,駐輪場,敷地内ゴミ置き場,防犯カメラ,BS,CS,CATV,インターネット

※掲載情報が現況と異なる場合は、現況を優先させていただきます。
※キャンペーン情報は予告なく変更・終了する場合がございます。詳細はお問い合わせください。
※部屋により敷金・礼金・キャンペーンの内容が異なる場合がございますので、詳しい情報は各部屋ページにてご確認ください。
※分譲賃貸は部屋によって所有者が異なる為、内装や設備が変更されている場合がございます。
※ペットの飼育やSOHO利用に関しては、建物自体が許可を出していても、所有者の意向により禁止とされている場合もございますのでご注意ください。

口コミ・評判

※これらの口コミは、ご成約者様や営業スタッフによる主観的な意見や感想です。建物の価値を客観的に評価するものではありません。あくまでも一つの参考としてご活用ください。

成約済み住戸一覧
その他29件を表示

代官山駅の新着(18件)

おすすめ物件情報

最近見た物件

ENetial代官山 の空室確認などはこちら

空室確認・内覧予約・空き待ちをご希望のお客様は、こちらよりお気軽にお問い合わせください。

03-6890-7755
【麻布店】
水曜定休 10時~19時
問い合わせる
閉じる

検討中リストに追加しました。

ページ上部の検討中リストより、追加した部屋情報が確認できます。

ページ上部の検討中リストより、追加した部屋情報が確認できます。