

フリーレント+仲介手数料無料+礼金0キャンペーン中です。
※キャンペーン内容は売買、賃貸、お部屋により異なります。
エレベーター,オートロック,宅配ボックス,TVドアホン,駐車場,バイク置き場,駐輪場,敷地内ゴミ置き場,防犯カメラ,BS,CS,CATV,インターネット
※掲載情報が現況と異なる場合は、現況を優先させていただきます。
※キャンペーン情報は予告なく変更・終了する場合がございます。詳細はお問い合わせください。
※部屋により敷金・礼金・キャンペーンの内容が異なる場合がございますので、詳しい情報は各部屋ページにてご確認ください。
※分譲賃貸は部屋によって所有者が異なる為、内装や設備が変更されている場合がございます。
※ペットの飼育やSOHO利用に関しては、建物自体が許可を出していても、所有者の意向により禁止とされている場合もございますのでご注意ください。
富川(男性)
2025/05/31
都営浅草線「蔵前」駅徒歩2分、都営大江戸線「蔵前」駅徒歩7分の立地に建つ、
江戸通り沿いに建つ地上14階建て、全49戸の賃貸マンションです。
周辺にはスーパーや薬局も揃っており、生活至便です。
12階のお部屋をご案内したのですが、通り向きの開口でしたが車の音は気になりませんでした。
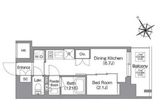
間取りはシングル、ディンクスの方にお勧めの1DK、1LDKがメインのラインナップとなっております。
希少なメゾネット住戸もございました。
1DK、1LDKでも様々なお部屋がありますので、ニーズにあったお部屋をご選択いただけるのも魅力です。
ご案内したお部屋はコンパクトな1DKではありましたが、リビングダイニングとベッドルームの仕切りには引き戸を採用しており、開閉によってフレキシブルな利用が可能です。
※これらの口コミは、ご成約者様や営業スタッフによる主観的な意見や感想です。建物の価値を客観的に評価するものではありません。あくまでも一つの参考としてご活用ください。
空室確認・内覧予約・空き待ちをご希望のお客様は、こちらよりお気軽にお問い合わせください。
03-6890-7755