

フリーレント+仲介手数料無料+礼金0キャンペーン中です。
※キャンペーン内容は売買、賃貸、お部屋により異なります。
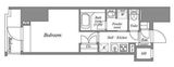
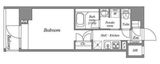
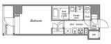
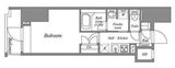
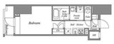
エレベーター,オートロック,宅配ボックス,TVドアホン,駐車場,バイク置き場,駐輪場,敷地内ゴミ置き場,防犯カメラ,BS,CS,CATV,インターネット
※掲載情報が現況と異なる場合は、現況を優先させていただきます。
※キャンペーン情報は予告なく変更・終了する場合がございます。詳細はお問い合わせください。
※部屋により敷金・礼金・キャンペーンの内容が異なる場合がございますので、詳しい情報は各部屋ページにてご確認ください。
※分譲賃貸は部屋によって所有者が異なる為、内装や設備が変更されている場合がございます。
※ペットの飼育やSOHO利用に関しては、建物自体が許可を出していても、所有者の意向により禁止とされている場合もございますのでご注意ください。
岡崎(男性)
2025/04/01
JR「亀戸駅」東口から徒歩10分のところにあるこちらの物件。
途中には商店街やスーパーなどもあり、帰宅途中に夕飯の買い物ができるとても生活のしやすい街でございます。
エントランスを入ると1階部分は内廊下になっており、内部ライトのトーンが暗めで落ち着いた雰囲気を醸し出していました。
上階の廊下は外廊下になっていますが、エレベーターを降りた際に眼の前に広がる景色が圧巻で、周囲に遮るものがないのでとても開放的な気分になりました。
※これらの口コミは、ご成約者様や営業スタッフによる主観的な意見や感想です。建物の価値を客観的に評価するものではありません。あくまでも一つの参考としてご活用ください。
空室確認・内覧予約・空き待ちをご希望のお客様は、こちらよりお気軽にお問い合わせください。
03-6890-7755