プラネソシエ青戸 成約済み物件 (13019-405)

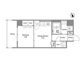
  • プラネソシエ青戸 405 間取り図
  • プラネソシエ青戸 物件写真 建物写真1
建物詳細ページを見る

物件概要

物件名
プラネソシエ青戸
賃料
---円
共益費/
管理費
---円
敷金
---ヶ月
礼金
---ヶ月
仲介
手数料
---ヶ月
フリー
レント
---ヶ月
その他費用
---
間取り
1DK
(DK6.1帖,洋室4.4帖)
専有面積
29.56m2
所在階/
総階数
4階/地上6階 
入居
可能時期
---
情報登録日
2023年10月2日
情報更新日
2024年2月11日
所在地
東京都葛飾区青戸1-1-7地図
交通
京成本線青砥駅」徒歩4分
京成押上線青砥駅」徒歩4分
成田スカイアクセス青砥駅」徒歩4分

問合番号
13019-405
物件特徴
低層マンション
更新料
---ヶ月
築年月
2024年1月
総戸数
35戸
建物構造
RC造
保険
要加入
保証会社
利用必須
方角
西
契約形態
普通賃貸借契約
ペット
不可 
SOHO・
事務所
不可 
取引態様
媒介

備考:

more

建物設備

エレベーター,オートロック,宅配ボックス,TVドアホン,駐車場,大型駐車場,駐輪場,敷地内ゴミ置き場,防犯カメラ,BS,CS,CATV,インターネット

部屋設備

独立洗面台,追い焚き,ウォシュレット,浴室乾燥機,システムキッチン,ガスコンロ,エアコン,ダブルロックキー,フローリング

※掲載情報が現況と異なる場合は、現況を優先させていただきます。
※キャンペーン情報は予告なく変更・終了する場合がございます。詳細はお問い合わせください。
※部屋により敷金・礼金・キャンペーンの内容が異なる場合がございますので、詳しい情報は各部屋ページにてご確認ください。
※分譲賃貸は部屋によって所有者が異なる為、内装や設備が変更されている場合がございます。
※ペットの飼育やSOHO利用に関しては、建物自体が許可を出していても、所有者の意向により禁止とされている場合もございますのでご注意ください。

おすすめ物件情報

最近見た物件

閉じる

検討中リストに追加しました。

ページ上部の検討中リストより、追加した部屋情報が確認できます。

ページ上部の検討中リストより、追加した部屋情報が確認できます。