

仲介手数料無料キャンペーン中です。
※キャンペーン内容は売買、賃貸、お部屋により異なります。
備考:
【駐車場】有 38,500円/月額
【バイク置き場】6,500円/月額
【駐輪場】2段ラック式 200円~1,100円/月額 ※駐輪場・バイク置き場・駐車場の空き状況等詳細につきましてはお問い合わせください。
エレベーター,オートロック,宅配ボックス,TVドアホン,駐車場,大型駐車場,バイク置き場,駐輪場,敷地内ゴミ置き場,防犯カメラ,BS,CS,CATV,インターネット
※掲載情報が現況と異なる場合は、現況を優先させていただきます。
※キャンペーン情報は予告なく変更・終了する場合がございます。詳細はお問い合わせください。
※部屋により敷金・礼金・キャンペーンの内容が異なる場合がございますので、詳しい情報は各部屋ページにてご確認ください。
※分譲賃貸は部屋によって所有者が異なる為、内装や設備が変更されている場合がございます。
※ペットの飼育やSOHO利用に関しては、建物自体が許可を出していても、所有者の意向により禁止とされている場合もございますのでご注意ください。
(30代/女性/1K)
2023/09/02
細かいところまで配慮されているような内装で暮らしやすさを感じました。
職場からの通勤の便もよく渋谷や新宿などに出かける際も動きやすい立地が気に入りました。
クオリティの高さの割に賃料が安く、決定しました。
深見(女性)
2023/09/03
京王線「上北沢駅」から徒歩4分の当物件は、高速道路を背にして立っておりました。風除室がなく、エントランスからアプローチへ進むとすぐにオートロック操作板がありますが、物件外からは見えづらい位置で配慮されております。
共用部にはソファと、コワーキングスペースが4席ございました。
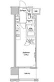
間取りは複数タイプの1K、1R、1DK、1SLDK、2LDKがございます。
1Kは01号室が特に異彩を放っており、西向きに独立した広いバルコニーがございました。シンクが他の1Kより小ぶりで、WICのポールもL字型ではなく1本のみです。
1Rタイプと同じL字に筋交う1Kもあるほか、観音扉状のクローゼットが豊富に配置された1Kもございます。
1SLDKのSはデスクとして使えそうな棚板があり、大きな荷物の保管庫としても使えるだけのスペースが設けられておりました。
2LDKは角部屋だと広いルーフバルコニーがございます。洋室はどちらもLDKにスライドドアで隣接し、デッドスペースが少ない仕様でした。キッチン・浴室にも窓(西向き)があり、訪れたのは夕方でしたが明るい印象を受けました。
高速道路や京王線の騒音は全く感じられず、南向きは背の低い住宅街が広がっているため眺望の良いフロアが殆どです。
駅前にはコンビニ・スーパーなど必要なものが揃っており、単身者にもご家族にもおすすめできる物件でした。
※これらの口コミは、ご成約者様や営業スタッフによる主観的な意見や感想です。建物の価値を客観的に評価するものではありません。あくまでも一つの参考としてご活用ください。
空室確認・内覧予約・空き待ちをご希望のお客様は、こちらよりお気軽にお問い合わせください。
03-6890-7755