

備考:
【駐車場】18台:機械式27,300円~31,500円/月額
【バイク置き場】8台:3,150円/月額
【駐輪場】1住戸につき1台無料 ※駐輪場・バイク置き場・駐車場の空き状況等詳細につきましてはお問い合わせください。
エレベーター,オートロック,宅配ボックス,TVドアホン,駐車場,バイク置き場,駐輪場,敷地内ゴミ置き場,内廊下,防犯カメラ,CATV,インターネット
※掲載情報が現況と異なる場合は、現況を優先させていただきます。
※キャンペーン情報は予告なく変更・終了する場合がございます。詳細はお問い合わせください。
※部屋により敷金・礼金・キャンペーンの内容が異なる場合がございますので、詳しい情報は各部屋ページにてご確認ください。
※分譲賃貸は部屋によって所有者が異なる為、内装や設備が変更されている場合がございます。
※ペットの飼育やSOHO利用に関しては、建物自体が許可を出していても、所有者の意向により禁止とされている場合もございますのでご注意ください。
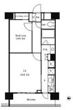
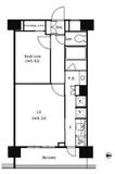
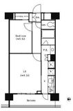
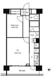
(30代/男性/2LDK)
2021/02/24
寝室とキッチン・リビングが離れている間取りが気に入りました。車の音が少し気になりましたが、日当たりも良好でした。
須賀(男性)
2021/02/21
天王洲アイル駅、新馬場駅など8~9分の距離に建っている高級賃貸マンションです。
物件の目の前にバス停があり、品川や目黒方面にもダイレクトでアクセスが可能です。
品川駅までは10分程で到着しますので、空港や新幹線を利用される方にも便利です。
建物は1K~2LDKとなっており、単身からファミリー層までの幅広い方々がご検討いただけます。
内覧したお部屋は大通りに面していないお部屋でしたが日当たりもよく、日中は電気も不要なほどです。
また、各洋室に大きなWICがついており、収納が十分に確保出来ている点は魅力と言えるでしょう。
近くには大型のショッピングセンター、イオン品川シーサイド店もあり、
主な生活必需品はこちらで問題なく揃います。
移動手段が多いため、都内だけでなく出張の多い方にもおすすめのエリアです。
※これらの口コミは、ご成約者様や営業スタッフによる主観的な意見や感想です。建物の価値を客観的に評価するものではありません。あくまでも一つの参考としてご活用ください。
空室確認・内覧予約・空き待ちをご希望のお客様は、こちらよりお気軽にお問い合わせください。
03-6890-7755