

仲介手数料無料キャンペーン中です。
※キャンペーン内容は売買、賃貸、お部屋により異なります。
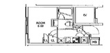
備考:
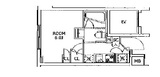
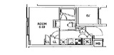
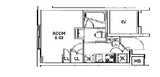
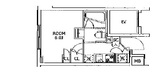
【駐車場】平置き2台
【バイク置場】4台 3,000円/月額(税別)
【駐輪場】54台 3,000円/年間(税別) ※駐輪場・バイク置き場・駐車場の空き状況等詳細につきましてはお問い合わせください。
エレベーター,オートロック,宅配ボックス,TVドアホン,駐車場,大型駐車場,バイク置き場,駐輪場,敷地内ゴミ置き場,内廊下,24時間管理,防犯カメラ,BS,CS,CATV,インターネット
※掲載情報が現況と異なる場合は、現況を優先させていただきます。
※キャンペーン情報は予告なく変更・終了する場合がございます。詳細はお問い合わせください。
※部屋により敷金・礼金・キャンペーンの内容が異なる場合がございますので、詳しい情報は各部屋ページにてご確認ください。
※分譲賃貸は部屋によって所有者が異なる為、内装や設備が変更されている場合がございます。
※ペットの飼育やSOHO利用に関しては、建物自体が許可を出していても、所有者の意向により禁止とされている場合もございますのでご注意ください。
鵜ノ澤(男性)
2016/12/15
内覧会へ行って参りました。京急本線「新馬場駅」徒歩3分の場所に建つ新築マンションです。品川方面へのアクセスも良く都内に出やすい環境になっております。
共用設備は、宅配ボックスを完備しており外出中の荷物の受取も簡単に出来ます。セキュリティ面も内廊下を使用やオートロックを完備しており安心できる造りになっております。お部屋は上層階のお部屋をご案内致しましたが目の前に建物が無く、眺望がひらけておりました。また、日当たりも良好でお部屋が明るいのも印象的でした。
※これらの口コミは、ご成約者様や営業スタッフによる主観的な意見や感想です。建物の価値を客観的に評価するものではありません。あくまでも一つの参考としてご活用ください。
空室確認・内覧予約・空き待ちをご希望のお客様は、こちらよりお気軽にお問い合わせください。
03-6890-7755