

仲介手数料OFF+礼金0キャンペーン中です。
※キャンペーン内容は売買、賃貸、お部屋により異なります。
備考:
【駐車場】26台(機械式25台、平置き※身障者用1台)
大型車:42,000円・ハイルーフ47,250円/月額・敷金1ヶ月
普通車:38,850円・ハイルーフ42,000円/月額・敷金1ヶ月
平置き:52,500円/月額・敷金1ヶ月※障害者用(1台)
大型車:全長5,050mm・全幅1,850mm・全高1,550mm(ハイルーフ2,000mm)・重量2,300kg
普通車:全長4,700mm・全幅1,750mm・全高1,550mm(ハイルーフ2,000mm)・重量2,000kg
【バイク置き場】17台(大型2台、中型2台、原付(屋根無)7台、原付(半屋根)6台)
大型:5,250円/月額・敷金1ヶ月
中型:4,200円/月額・敷金1ヶ月
原付:屋根無2,100円/月額・半屋根3,150円/月額・敷金1ヶ月
【駐輪場】123台(2段ラック式)無料 ※駐輪場・バイク置き場・駐車場の空き状況等詳細につきましてはお問い合わせください。
エレベーター,オートロック,宅配ボックス,TVドアホン,駐車場,大型駐車場,バイク置き場,駐輪場,敷地内ゴミ置き場,内廊下,防犯カメラ,BS,CS,CATV,インターネット,閑静な住宅街
※掲載情報が現況と異なる場合は、現況を優先させていただきます。
※キャンペーン情報は予告なく変更・終了する場合がございます。詳細はお問い合わせください。
※部屋により敷金・礼金・キャンペーンの内容が異なる場合がございますので、詳しい情報は各部屋ページにてご確認ください。
※分譲賃貸は部屋によって所有者が異なる為、内装や設備が変更されている場合がございます。
※ペットの飼育やSOHO利用に関しては、建物自体が許可を出していても、所有者の意向により禁止とされている場合もございますのでご注意ください。
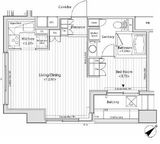
(20代/男性/1LDK)
2023/02/13
築15年超を感じさせない外観です。駅からも近く、周辺環境も良いと思います。高層階の部屋からの開けた眺望が気に入りました。
吉田(男性)
2021/01/15
東急目黒線 「不動前駅」より 徒歩3分、桜並木で有名な、かむろ坂通りと山手通りが交わるエリアに物件はございます。
近隣にはスーパー、コンビニ、多数の飲食店が立ち並び、日常生活を快適におくれます。
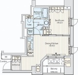
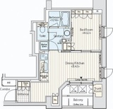
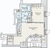
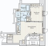
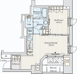
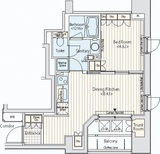
今回は4Fの1DKのお部屋を内覧しました。
室内はバスルームなど水回りがとても広くつくられており、壁面には複数収納が設けられるなど細かな配慮も嬉しいポイントです。
当物件のキッチンは1Rタイプでもファミリー向けの部屋並みに広々としており、一般の方にはもちろんのこと、料理好きの方には特におすすめです。
間取りのご用意も1R30平米から1SLDK55平米と幅広いニーズに対応ができます。
(30代/男性/1LDK)
2016/06/18
日当たりがよく、住みやすそうな感じでした。
成約に至った理由は、見晴らしがよく収納も広く、営業担当者がいい物件を見つけてくださったことだと思います。
※これらの口コミは、ご成約者様や営業スタッフによる主観的な意見や感想です。建物の価値を客観的に評価するものではありません。あくまでも一つの参考としてご活用ください。
空室確認・内覧予約・空き待ちをご希望のお客様は、こちらよりお気軽にお問い合わせください。
03-6890-7755