QUALITAS浅草橋 (クオリタス浅草橋) 成約済み物件 (10569-904)

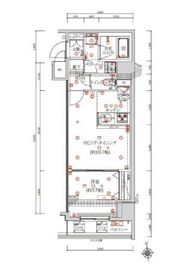
  • QUALITAS浅草橋 (クオリタス浅草橋) 904 間取り図
  • QUALITAS浅草橋 (クオリタス浅草橋) 物件写真 建物写真1
  • QUALITAS浅草橋 (クオリタス浅草橋) 物件写真 建物写真2
  • QUALITAS浅草橋 (クオリタス浅草橋) 物件写真 建物写真3
  • QUALITAS浅草橋 (クオリタス浅草橋) 物件写真 建物写真4
  • QUALITAS浅草橋 (クオリタス浅草橋) 物件写真 建物写真5
建物詳細ページを見る

物件概要

物件名
QUALITAS浅草橋 (クオリタス浅草橋)
賃料
---円
共益費/
管理費
---円
敷金
---ヶ月
礼金
---ヶ月
仲介
手数料
---ヶ月
フリー
レント
---ヶ月
その他費用
---
間取り
1LDK
(LDK10.7帖,洋室3.7帖)
専有面積
40.28m2
所在階/
総階数
9階/地上13階 
入居
可能時期
---
情報登録日
2022年8月19日
情報更新日
2023年12月4日
所在地
東京都台東区浅草橋2-22-4地図
交通
JR中央・総武線浅草橋駅」徒歩5分
都営浅草線浅草橋駅」徒歩6分
JR山手線秋葉原駅」徒歩15分

問合番号
10569-904
物件特徴
ペット可
更新料
---ヶ月
築年月
2022年8月
総戸数
54戸
建物構造
RC造
保険
要加入
保証会社
利用必須
方角
契約形態
普通賃貸借契約
ペット
可 小型犬(敷金1ヶ月積み増し)猫(敷金2ヶ月積み増し)
SOHO・
事務所
不可 
取引態様
媒介

備考:

more

建物設備

エレベーター,オートロック,宅配ボックス,TVドアホン,駐車場,バイク置き場,駐輪場,敷地内ゴミ置き場,防犯カメラ,BS,CS,CATV,インターネット

部屋設備

独立洗面台,ウォシュレット,浴室乾燥機,システムキッチン,カウンターキッチン,ガスコンロ,エアコン,ダブルロックキー,フローリング,角部屋,南向き

※掲載情報が現況と異なる場合は、現況を優先させていただきます。
※キャンペーン情報は予告なく変更・終了する場合がございます。詳細はお問い合わせください。
※部屋により敷金・礼金・キャンペーンの内容が異なる場合がございますので、詳しい情報は各部屋ページにてご確認ください。
※分譲賃貸は部屋によって所有者が異なる為、内装や設備が変更されている場合がございます。
※ペットの飼育やSOHO利用に関しては、建物自体が許可を出していても、所有者の意向により禁止とされている場合もございますのでご注意ください。

おすすめ物件情報

閉じる

検討中リストに追加しました。

ページ上部の検討中リストより、追加した部屋情報が確認できます。

ページ上部の検討中リストより、追加した部屋情報が確認できます。