

備考:
【駐車場】機械式16台、平置き4台
機械式:30,000円~36,000円/月額 平置き:38,000円/月額
【バイク置き場】8台 2,000円/月額
【駐輪場】89台 200円~300円/月額
【耐震性能】免震構造
【共用施設】
・コンシェルジュサービス
・ラウンジ
※駐輪場・バイク置き場・駐車場の空き状況等詳細につきましてはお問い合わせください。
エレベーター,オートロック,宅配ボックス,TVドアホン,ペット足洗い場,駐車場,大型駐車場,バイク置き場,駐輪場,ラウンジ,コンシェルジュ,敷地内ゴミ置き場,各階ゴミ置き場,内廊下,24時間管理,防犯カメラ,BS,CS,CATV,インターネット,楽器可,免震・制震
※掲載情報が現況と異なる場合は、現況を優先させていただきます。
※キャンペーン情報は予告なく変更・終了する場合がございます。詳細はお問い合わせください。
※部屋により敷金・礼金・キャンペーンの内容が異なる場合がございますので、詳しい情報は各部屋ページにてご確認ください。
※分譲賃貸は部屋によって所有者が異なる為、内装や設備が変更されている場合がございます。
※ペットの飼育やSOHO利用に関しては、建物自体が許可を出していても、所有者の意向により禁止とされている場合もございますのでご注意ください。
松野(男性)
2017/01/23
先日、ルフォン白金ザ・タワーレジデンスのご案内に行って参りました。
高輪台駅A2出口からでて、約1分の場所に建っていました。
駅からとても近く、駅近でお探しの方にもお勧めです。
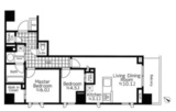
今回は4階の2LDKのお部屋をご案内しましたが、角部屋で窓が多く、通気性にすぐれたお部屋でした。
建物は桜田通り沿いですが道が広いため、目の前の建物はあまり気になりませんでした。
室内はディスポーザーや食洗機、ミストサウナ、床暖房など充実した設備が揃っていました。
※これらの口コミは、ご成約者様や営業スタッフによる主観的な意見や感想です。建物の価値を客観的に評価するものではありません。あくまでも一つの参考としてご活用ください。
空室確認・内覧予約・空き待ちをご希望のお客様は、こちらよりお気軽にお問い合わせください。
03-6890-7755
