

仲介手数料OFFキャンペーン中です。
※キャンペーン内容は売買、賃貸、お部屋により異なります。
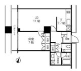
備考:
【駐車場】
・機械式 43,000円/月額(税別)
・平置き 48,000円/月額(税別)
【バイク置き場】5,000円~10,000円/月額(税別)
【駐輪場】2,000円/月額(税別)
【トランクルーム】3,000円~10,000円/月額(税別)
【施設】
・地下1階…スーパーマーケット「ピーコック」 ※駐輪場・バイク置き場・駐車場の空き状況等詳細につきましてはお問い合わせください。
エレベーター,オートロック,宅配ボックス,TVドアホン,トランクルーム,駐車場,大型駐車場,バイク置き場,駐輪場,ラウンジ,コンシェルジュ,敷地内ゴミ置き場,各階ゴミ置き場,内廊下,24時間管理,防犯カメラ,BS,CS,CATV,インターネット,免震・制震
※掲載情報が現況と異なる場合は、現況を優先させていただきます。
※キャンペーン情報は予告なく変更・終了する場合がございます。詳細はお問い合わせください。
※部屋により敷金・礼金・キャンペーンの内容が異なる場合がございますので、詳しい情報は各部屋ページにてご確認ください。
※分譲賃貸は部屋によって所有者が異なる為、内装や設備が変更されている場合がございます。
※ペットの飼育やSOHO利用に関しては、建物自体が許可を出していても、所有者の意向により禁止とされている場合もございますのでご注意ください。
(40代/男性/1LDK)
2020/08/27
建物も内装も程良く、窓の外が開けていて良かった。
(30代/女性/2LDK)
2018/01/11
やや古さを感じるが室内が広くて良い。
保育園が近くにあるので助かる。
(30代/男性/2LDK)
2017/04/28
周辺施設の充実が良かった。
※これらの口コミは、ご成約者様や営業スタッフによる主観的な意見や感想です。建物の価値を客観的に評価するものではありません。あくまでも一つの参考としてご活用ください。
空室確認・内覧予約・空き待ちをご希望のお客様は、こちらよりお気軽にお問い合わせください。
03-6890-7755