白金タワー 成約済み物件 (680-16F1)
白金 TOWER
| 価格 | ---万円 | ||
|---|---|---|---|
| 管理費 | ---円 | 修繕積立金 | ---円 |
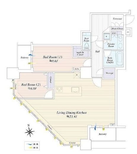
| 間取り | 2LDK+WIC | 面積 | 93.57m2 |
| 所在階 | 16階 | 方角 | 南 |
| 情報登録日 | 2021年11月21日 | 情報更新日 | 2025年12月18日 |
白金タワー の新着マッチングメールを登録する
会員登録するとマッチング機能がご利用いただけます。
ご希望の物件をマッチング登録すると、新着情報がいち早くメールで送られてきます。
0人がマッチング登録中!
物件概要
| 物件名 | 白金タワー | ||
|---|---|---|---|
| 所在地 | 東京都港区白金1-17-1 | ||
| 交通 | 東京メトロ南北線「白金高輪駅」徒歩1分 都営三田線「白金高輪駅」徒歩1分 東京メトロ南北線「麻布十番駅」徒歩15分 |
||
| 問い合わせ番号 | 680-B-16F1 | ||
| 物件特徴 | タワーマンション、ペット可、分譲賃貸 | ||
| 価格 | ---万円 | 管理費 | ---円 |
| 修繕積立金 | ---円 | 借地料 | ---円 |
| 仲介手数料 | ---% | その他費用 | --- |
| 間取り | 2LDK | 専有面積 | 93.57m2 |
| 方角 | 南 | バルコニー面積 | 7.38m2 |
| 築年月 | 2005年11月 | 総階数 | 地上42階 地下3階 |
| 総戸数 | 581戸 | 建物構造 | SRC造 |
| 現況 | --- | オーナーチェンジ(利回り) | - |
| 年間賃料収入 (確認日 / 金額) |
|||
| ペット | 可 | 引渡し時期 | --- |
| SOHO・事務所 | 不可 | ||
| 土地権利 | 所有権 | 借地期間 | |
| 用途地域1 | 商業地域 | 用途地域2 | 準工業地域 |
| 敷地面積 | 8,498.84m2 | 施工会社 | 鹿島建設株式会社 |
| 管理形態 | 全部委託 | 管理方式 | 常駐 |
| 管理会社 | 三井不動産レジデンシャルサービス株式会社 | 分譲会社 | 住友商事株式会社、三井物産株式会社 |
※駐輪場・バイク置き場・駐車場の空き状況等詳細につきましてはお問い合わせください。
備考
【その他費用】
・インターネット管理費:1620円/月額
・CATV視聴料:324円/月額
【リフォーム内容】
・フロス貼替
・フローリング貼替
・キッチン交換
・トイレ交換
・洗面台交換
建物設備
- エレベーター
- オートロック
- 宅配ボックス
- TVドアホン
- トランクルーム
- 駐車場
- 大型駐車場
- バイク置き場
- 駐輪場
- ラウンジ
- コンシェルジュ
- フィットネスジム
- ゲストルーム
- パーティールーム
- 敷地内ゴミ置き場
- 各階ゴミ置き場
- 内廊下
- 24時間管理
- 防犯カメラ
- BS
- CS
- CATV
- インターネット
- 免震・制震
部屋設備
- 独立洗面台
- 追い焚き
- ウォシュレット
- 浴室乾燥機
- システムキッチン
- カウンターキッチン
- ディスポーザー
- 食器洗浄機
- 浄水器
- ガスコンロ
- エアコン
- ウォークインクローゼット
- ダブルロックキー
- フローリング
- 角部屋
- 南向き
- リノベーション
※建物周辺情報はGoogleMapを使用しており、物件の表示位置が実際の場所と多少異なる場合があります。
- ※掲載情報が現況と異なる場合は、現況を優先させていただきます。
- ※建物・室内の写真は一部の参考データの為、内装や設備などが異なる場合がございます。
- ※インターネット、衛星・有線放送などの接続および料金形態につきましては、物件によって異なりますので各事業者へ直接お問い合わせください。また、携帯電話の電波状況は室内にてご使用される携帯電話でご確認をお願いいたします。
- ※付帯施設、設備や備品等は別途契約や利用料金が掛かる場合もございます。
- ※完成予想図は図面を基に描き起こしたもので、外観や植栽等実際のものとは多少異なる場合があります。
- ※購入前に物件概要や契約内容について、必ずお客様ご自身で十分にご確認ください。
- ※掲載されている写真や完成予想図、または間取り図に描かれている家具や車等は価格に含まれません。
- ※掲載の小学校区は、各自治体が公開している学区データを基に表示したものであり、該当小学校区を保証するものではありません。各自治体にお問合せください。
- ※マンションにおけるペット飼育は、管理規約によって定められたペットの種類や大きさ、飼育方法等に従ってください。
- ※掲載の利回り、賃料収入は将来に渡って確実に得られることを保証するものではありません。
- ※掲載物件は予告なく成約済あるいは販売中止となる場合もございます。
白金タワー の新着マッチングメールを登録する
会員登録するとマッチング機能がご利用いただけます。
ご希望の物件をマッチング登録すると、新着情報がいち早くメールで送られてきます。
0人がマッチング登録中!
【売買物件】募集中住戸一覧
2室表示(会員登録すると3室閲覧できます)