東京ガーデンテラス紀尾井町 住宅棟 7階

東京ガーデンテラス紀尾井町 住宅棟

賃料 1,650,000円 共益費/管理費 0円
敷金 2ヶ月 礼金 1ヶ月
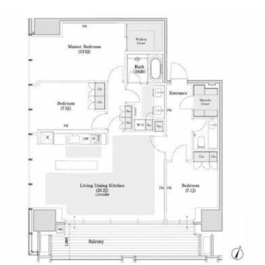
間取り 3LDK+WIC+SIC 専有面積 116.75m2
所在階 7階 入居日 即入居
情報登録日 2026年2月28日 情報更新日 2026年3月15日
部屋1 LDK25.2帖 部屋2 洋室12帖
部屋3 洋室7.1帖 部屋4 洋室7帖
部屋5 部屋6
部屋7 部屋8
部屋9 部屋10

東京ガーデンテラス紀尾井町 住宅棟 7階 のお問い合わせはこちら

東京ガーデンテラス紀尾井町 住宅棟 の新着マッチングメールを登録する

会員登録するとマッチング機能がご利用いただけます。
ご希望の物件をマッチング登録すると、新着情報がいち早くメールで送られてきます。

1人がマッチング登録中!

物件概要

物件名 東京ガーデンテラス紀尾井町 住宅棟
所在地 東京都千代田区紀尾井町1-5
交通 東京メトロ有楽町線永田町駅」徒歩1分
東京メトロ南北線永田町駅」徒歩1分
東京メトロ銀座線赤坂見附駅」徒歩1分
東京メトロ丸ノ内線赤坂見附駅」徒歩1分
問い合わせ番号 3792-7F1
物件特徴 タワーマンション
賃料 1,650,000円 共益費/管理費 0円
間取り 3LDK 専有面積 116.75m2
敷金 2ヶ月 礼金 1ヶ月
仲介手数料 1ヶ月 その他費用
フリーレント 0ヶ月 更新料 0ヶ月
築年月 2016年2月 総階数 地上21階 地下2階
総戸数 135戸 建物構造 RC造
保険 要加入 保証会社 利用必須
方角 契約形態 定期借家契約 2年間
ペット 不可  入居可能時期

即入居

SOHO・事務所 不可  取引態様 媒介

※駐輪場・バイク置き場・駐車場の空き状況等詳細につきましてはお問い合わせください。

備考

建物設備

  • エレベーター
  • オートロック
  • 宅配ボックス
  • TVドアホン
  • トランクルーム
  • ペット足洗い場
  • 駐車場
  • 大型駐車場
  • バイク置き場
  • ラウンジ
  • コンシェルジュ
  • フィットネスジム
  • パーティールーム
  • 敷地内ゴミ置き場
  • 内廊下
  • 24時間管理
  • 防犯カメラ
  • BS
  • CS
  • CATV
  • インターネット

部屋設備

  • 独立洗面台
  • 追い焚き
  • ウォシュレット
  • 浴室乾燥機
  • システムキッチン
  • ディスポーザー
  • 食器洗浄機
  • 浄水器
  • ガスコンロ
  • 床暖房
  • エアコン
  • シューズインクローゼット
  • ウォークインクローゼット
  • フローリング
  • 角部屋
  • 南向き

※建物周辺情報はGoogleMapを使用しており、物件の表示位置が実際の場所と多少異なる場合があります。

東京ガーデンテラス紀尾井町 住宅棟 の新着マッチングメールを登録する

会員登録するとマッチング機能がご利用いただけます。
ご希望の物件をマッチング登録すると、新着情報がいち早くメールで送られてきます。

1人がマッチング登録中!

【賃貸物件】募集中住戸一覧

6室表示(会員登録すると7室閲覧できます)

所在階 間取り 面積 賃料 管理費 敷金/礼金 仲介
手数料
フリー
レント
入居日 検討中 問合せ 詳細
5F 1LDK 55.67m2 58.0万円 2.0万円 2ヶ月/1ヶ月 1ヶ月 0ヶ月 即入居   お問い合わせ 詳細
6F 1LDK 55.65m2 55.0万円 2.0万円 1ヶ月/1ヶ月 1ヶ月 0ヶ月 即入居   お問い合わせ 詳細
7F 3LDK 116.75m2 165.0万円 0万円 2ヶ月/1ヶ月 1ヶ月 0ヶ月 即入居   お問い合わせ 詳細
7F 2LDK 90.85m2 125.0万円 0万円 2ヶ月/1ヶ月 1ヶ月 0ヶ月 即入居   お問い合わせ 詳細
9F 2LDK 107m2 150.0万円 0万円 2ヶ月/1ヶ月 0ヶ月 0ヶ月 即入居   お問い合わせ 詳細
9F 1LDK 55.67m2 50.0万円 0万円 1ヶ月/0ヶ月 1ヶ月 0ヶ月 相談   お問い合わせ 詳細
チェックした住戸をまとめてお問い合わせ

最近見た物件

簡単1分!会員登録はこちら