THE TOYOSU TOWER 5階

ザ・豊洲タワー

賃料 390,000円 共益費/管理費 10,000円
敷金 1ヶ月 礼金 1ヶ月
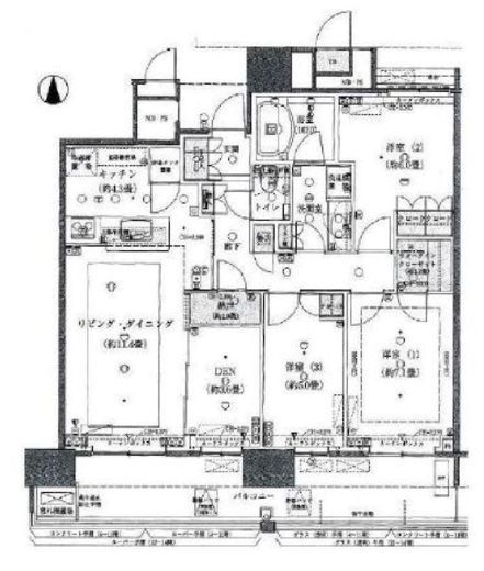
間取り 3SLDK+WIC 専有面積 85.82m2
所在階 5階 入居日 7月下旬
情報登録日 2026年5月24日 情報更新日 2026年5月24日
部屋1 LDK15.7帖 部屋2 洋室7.1帖
部屋3 洋室6帖 部屋4 洋室5帖
部屋5 DEN3.6帖 部屋6
部屋7 部屋8
部屋9 部屋10

THE TOYOSU TOWER 5階 のお問い合わせはこちら

THE TOYOSU TOWER の新着マッチングメールを登録する

会員登録するとマッチング機能がご利用いただけます。
ご希望の物件をマッチング登録すると、新着情報がいち早くメールで送られてきます。

2人がマッチング登録中!

物件概要

物件名 THE TOYOSU TOWER
所在地 東京都江東区豊洲3-6-5
交通 東京メトロ有楽町線豊洲駅」徒歩6分
ゆりかもめ豊洲駅」徒歩7分


問い合わせ番号 2536-5F2
物件特徴 タワーマンション、分譲賃貸
賃料 390,000円 共益費/管理費 10,000円
間取り 3SLDK 専有面積 85.82m2
敷金 1ヶ月 礼金 1ヶ月
仲介手数料 1ヶ月 その他費用
フリーレント 0ヶ月 更新料 1ヶ月
築年月 2009年1月 総階数 地上43階 地下1階
総戸数 825戸 建物構造 RC造
保険 要加入 保証会社 利用必須
方角 契約形態 普通賃貸借契約
ペット 不可  入居可能時期

7月下旬

SOHO・事務所 不可  取引態様 媒介

※駐輪場・バイク置き場・駐車場の空き状況等詳細につきましてはお問い合わせください。

備考

建物設備

  • エレベーター
  • オートロック
  • 宅配ボックス
  • TVドアホン
  • 駐車場
  • 駐輪場
  • ラウンジ
  • コンシェルジュ
  • フィットネスジム
  • ゲストルーム
  • パーティールーム
  • 敷地内ゴミ置き場
  • 各階ゴミ置き場
  • 内廊下
  • オール電化
  • 24時間管理
  • 防犯カメラ
  • BS
  • CS
  • CATV
  • インターネット
  • 楽器可

部屋設備

  • 独立洗面台
  • 追い焚き
  • ウォシュレット
  • 浴室乾燥機
  • システムキッチン
  • カウンターキッチン
  • ディスポーザー
  • 浄水器
  • IHコンロ
  • 床暖房
  • エアコン
  • ウォークインクローゼット
  • ダブルロックキー
  • フローリング
  • 南向き

※建物周辺情報はGoogleMapを使用しており、物件の表示位置が実際の場所と多少異なる場合があります。

THE TOYOSU TOWER の新着マッチングメールを登録する

会員登録するとマッチング機能がご利用いただけます。
ご希望の物件をマッチング登録すると、新着情報がいち早くメールで送られてきます。

2人がマッチング登録中!

【賃貸物件】募集中住戸一覧

4室表示

所在階 間取り 面積 賃料 管理費 敷金/礼金 仲介
手数料
フリー
レント
入居日 検討中 問合せ 詳細
NEW
5F
2LDK 62.55m2 25.8万円 1.8万円 1ヶ月/0ヶ月 0.5ヶ月 0ヶ月 即入居   お問い合わせ 詳細
5F 3SLDK 85.82m2 39.0万円 1.0万円 1ヶ月/1ヶ月 1ヶ月 0ヶ月 7月下旬   お問い合わせ 詳細
14F 1LDK 57.49m2 23.0万円 0万円 1ヶ月/2ヶ月 1ヶ月 0ヶ月 即入居   お問い合わせ 詳細
23F 2LDK 60.73m2 28.5万円 1.5万円 1ヶ月/1ヶ月 1ヶ月 0ヶ月 7月下旬   お問い合わせ 詳細
チェックした住戸をまとめてお問い合わせ

最近見た物件

簡単1分!会員登録はこちら