ブリリアイスト洗足池の杜
Brillia ist 洗足池の杜
Brillia ist 洗足池の杜
大田区東雪谷エリアに誕生した東京建物が贈る高級賃貸レジデンスシリーズ「ブリリアイスト」シリーズの一棟「ブリリアイスト洗足池の杜」
東急池上線「石川台駅」徒歩4分、「洗足池駅」徒歩5分。東急目黒線「大岡山駅」も徒歩圏内で複数駅を使い分けることができる暮らし広がるアクセス環境。周辺にはスーパー、コンビニエンスストアがあり日常生活にも大変便利です。
物件は地上5階建て、総戸数42戸。優良木造建築物等整備推進事業に採択され、木の温かみを感じられる居住空間。共用廊下は外部の視線をさえぎる内廊下仕様です。
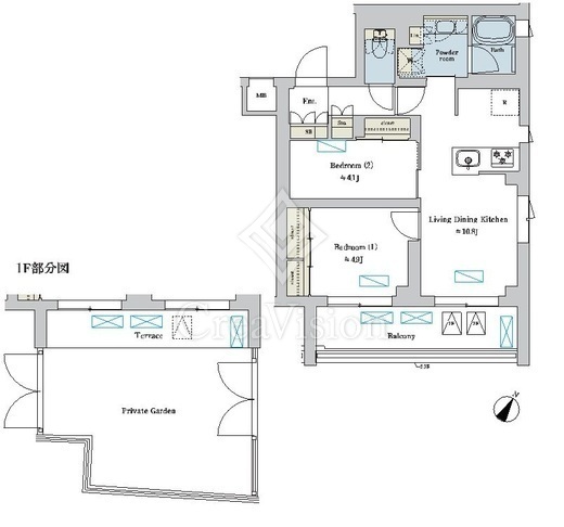
間取りは1DK~2LDKの多彩なプランバリエーション。室内には暮らしの質を高める設備仕様が整います。
ブリリアイスト洗足池の杜 の空室確認などはこちら
空室確認・内覧予約・空き待ちをご希望のお客様は、こちらよりお気軽にお問い合わせください。
ブリリアイスト洗足池の杜 の新着マッチングメールを登録する
会員登録するとマッチング機能がご利用いただけます。
ご希望の物件をマッチング登録すると、新着情報がいち早くメールで送られてきます。
【売買物件】募集中住戸一覧
0室表示
【賃貸物件】募集中住戸一覧
20室表示
ブリリアイスト洗足池の杜の最寄り駅 平米単価の相場推移
石川台駅 平米単価チャート
※当社掲載物件の賃料相場になります
※データがない場合は前後でデータを結んでいます
物件概要
| 物件名 | ブリリアイスト洗足池の杜 | ||
|---|---|---|---|
| 所在地 | 東京都大田区東雪谷1-9-13 | ||
| 交通 | 東急池上線「石川台駅」徒歩4分 東急池上線「洗足池駅」徒歩5分 東急目黒線「大岡山駅」徒歩15分 |
||
| 問い合わせ番号 | 17925-B | ||
| 物件特徴 | 低層マンション、ペット可 | ||
| 価格 | - | ||
| 管理費 | - | 修繕積立金 | - |
| 間取り | - | 専有面積 | - |
| 築年月 | 2026年3月 | 総階数 | 地上5階 |
| 総戸数 | 42戸 | 建物構造 |
木造 |
| 土地権利 | 借地期間 | ||
| 用途地域1 | 用途地域2 | ||
| 敷地面積 | - | 施工会社 | |
| 管理形態 | 管理方式 | ||
| 管理会社 | 分譲会社 | ||
| 通学エリア小学校 | 小池小学校 | 取引形態 | 媒介 |
備考
【駐車場】3台 33,000円/月額
【バイク置き場】3台 6,600円/月額
【駐輪場】50台 550~1,100円/月額
※駐輪場・バイク置き場・駐車場の空き状況等詳細につきましてはお問い合わせください。
建物設備
- エレベーター
- オートロック
- 宅配ボックス
- TVドアホン
- 駐車場
- バイク置き場
- 駐輪場
- ラウンジ
- 敷地内ゴミ置き場
- 内廊下
- 防犯カメラ
- BS
- CS
- CATV
- インターネット
※建物周辺情報はGoogleMapを使用しており、物件の表示位置が実際の場所と多少異なる場合があります。
- ※掲載情報が現況と異なる場合は、現況を優先させていただきます。
- ※建物・室内の写真は一部の参考データの為、内装や設備などが異なる場合がございます。
- ※インターネット、衛星・有線放送などの接続および料金形態につきましては、物件によって異なりますので各事業者へ直接お問い合わせください。また、携帯電話の電波状況は室内にてご使用される携帯電話でご確認をお願いいたします。
- ※付帯施設、設備や備品等は別途契約や利用料金が掛かる場合もございます。
- ※完成予想図は図面を基に描き起こしたもので、外観や植栽等実際のものとは多少異なる場合があります。
- ※購入前に物件概要や契約内容について、必ずお客様ご自身で十分にご確認ください。
- ※掲載されている写真や完成予想図、または間取り図に描かれている家具や車等は価格に含まれません。
- ※掲載の小学校区は、各自治体が公開している学区データを基に表示したものであり、該当小学校区を保証するものではありません。各自治体にお問合せください。
- ※マンションにおけるペット飼育は、管理規約によって定められたペットの種類や大きさ、飼育方法等に従ってください。
- ※掲載の利回り、賃料収入は将来に渡って確実に得られることを保証するものではありません。
- ※掲載物件は予告なく成約済あるいは販売中止となる場合もございます。
ブリリアイスト洗足池の杜 の空室確認などはこちら
空室確認・内覧予約・空き待ちをご希望のお客様は、こちらよりお気軽にお問い合わせください。
ブリリアイスト洗足池の杜 の新着マッチングメールを登録する
会員登録するとマッチング機能がご利用いただけます。
ご希望の物件をマッチング登録すると、新着情報がいち早くメールで送られてきます。
口コミ・評判
一覧を見る(1件)押野
2026/03/19
東急池上線「石川台駅」から徒歩4分の場所に物件はございます。
内覧会で複数タイプのお部屋を内覧しました。
1LDK・2LDKにはクローゼットとは別に奥行のある収納がありとても便利そうでした。
1DKにはありませんでしたが、その分SICが大きい仕様です。
本物件は主要構造や内装に木材を使用しており、共用部を始め室内にも木の温かみを感じられるデザインが施されております。
隣室からスピーカーで音を流して防音性を確認しましたが、鉄筋コンクリート造と変わりない防音性でした。
静かな住宅街に位置しており、快適な住環境が確保出来そうです。
※これらの口コミは、ご成約者様や営業スタッフによる主観的な意見や感想です。
建物の価値を客観的に評価するものではありません。あくまでも一つの参考としてご活用ください。








