ザ・ヨコハマタワーズ タワーウエスト 19階
ザ・ヨコハマタワーズ タワーウエスト
| 価格 | 1億4,990万円 | ||
|---|---|---|---|
| 管理費 | 18,700円 | 修繕積立金 | 26,200円 |
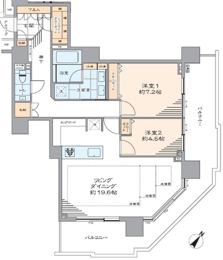
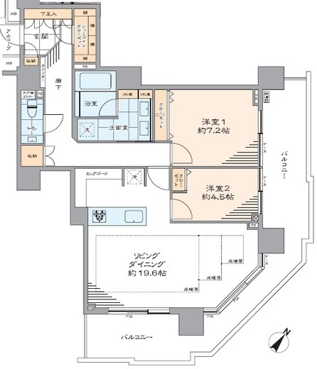
| 間取り | 2LDK+SIC | 面積 | 82.01m2 |
| 所在階 | 19階 | 方角 | 南東 |
| 情報登録日 | 2026年1月13日 | 情報更新日 | 2026年2月16日 |
ザ・ヨコハマタワーズ タワーウエスト 19階 のお問い合わせはクレアビジョンまで
ザ・ヨコハマタワーズ タワーウエスト の新着マッチングメールを登録する
会員登録するとマッチング機能がご利用いただけます。
ご希望の物件をマッチング登録すると、新着情報がいち早くメールで送られてきます。
0人がマッチング登録中!
物件概要
| 物件名 | ザ・ヨコハマタワーズ タワーウエスト | ||
|---|---|---|---|
| 所在地 | 神奈川県横浜市神奈川区栄町10-35 | ||
| 交通 | JR京浜東北線「横浜駅」徒歩9分 東急東横線「横浜駅」徒歩10分 京急本線「神奈川駅」徒歩11分 みなとみらい線「新高島駅」徒歩13分 京急本線「京急東神奈川駅」徒歩18分 |
||
| 問い合わせ番号 | 11955-B-19F1 | ||
| 物件特徴 | タワーマンション、ペット可、分譲賃貸 | ||
| 価格 | 1億4,990万円 | 管理費 | 18,700円 |
| 修繕積立金 | 26,200円 | 借地料 | 0円 |
| 仲介手数料 | 0% | その他費用 | |
| 間取り | 2LDK | 専有面積 | 82.01m2 |
| 方角 | 南東 | バルコニー面積 | 28.3m2 |
| 築年月 | 2001年9月 | 総階数 | 地上42階 地下1階 |
| 総戸数 | 402戸 | 建物構造 | SRC造 |
| 現況 | 空室 | オーナーチェンジ(利回り) | - |
| 年間賃料収入 (確認日 / 金額) |
|||
| ペット | 可 | 引渡し時期 | 即入居 |
| SOHO・事務所 | 不可 | ||
| 土地権利 | 所有権 | 借地期間 | |
| 用途地域1 | 工業地域 | 用途地域2 | |
| 敷地面積 | 17,174.1m2 | 施工会社 | 鹿島建設株式会社 |
| 管理形態 | 全部委託 | 管理方式 | 日勤 |
| 管理会社 | 三菱地所コミュニティ株式会社 | 分譲会社 | 三菱地所株式会社、新日本製鐵株式会社、関東菱重興産株式会社、平和不動産株式会社、トーヨーカネツ株式会社 |
※駐輪場・バイク置き場・駐車場の空き状況等詳細につきましてはお問い合わせください。
備考
建物設備
- エレベーター
- オートロック
- 宅配ボックス
- TVドアホン
- 駐車場
- バイク置き場
- 駐輪場
- ラウンジ
- キッズルーム
- ゲストルーム
- シアタールーム
- 敷地内ゴミ置き場
- 各階ゴミ置き場
- 内廊下
- 防犯カメラ
- インターネット
部屋設備
- 独立洗面台
- 追い焚き
- ウォシュレット
- 浴室乾燥機
- システムキッチン
- カウンターキッチン
- 食器洗浄機
- 浄水器
- 床暖房
- エアコン
- シューズインクローゼット
- ダブルロックキー
- フローリング
- 角部屋
- 南向き
- リノベーション
※建物周辺情報はGoogleMapを使用しており、物件の表示位置が実際の場所と多少異なる場合があります。
- ※掲載情報が現況と異なる場合は、現況を優先させていただきます。
- ※建物・室内の写真は一部の参考データの為、内装や設備などが異なる場合がございます。
- ※インターネット、衛星・有線放送などの接続および料金形態につきましては、物件によって異なりますので各事業者へ直接お問い合わせください。また、携帯電話の電波状況は室内にてご使用される携帯電話でご確認をお願いいたします。
- ※付帯施設、設備や備品等は別途契約や利用料金が掛かる場合もございます。
- ※完成予想図は図面を基に描き起こしたもので、外観や植栽等実際のものとは多少異なる場合があります。
- ※購入前に物件概要や契約内容について、必ずお客様ご自身で十分にご確認ください。
- ※掲載されている写真や完成予想図、または間取り図に描かれている家具や車等は価格に含まれません。
- ※掲載の小学校区は、各自治体が公開している学区データを基に表示したものであり、該当小学校区を保証するものではありません。各自治体にお問合せください。
- ※マンションにおけるペット飼育は、管理規約によって定められたペットの種類や大きさ、飼育方法等に従ってください。
- ※掲載の利回り、賃料収入は将来に渡って確実に得られることを保証するものではありません。
- ※掲載物件は予告なく成約済あるいは販売中止となる場合もございます。
ザ・ヨコハマタワーズ タワーウエスト 19階のローンシミュレーション
頭金、ボーナス月加算の目安(年2回)、返済期間、金利を入力すると、
「毎月の返済額」と「ボーナス月加算額」を確認できます。
- 毎月の返済額
- ---円
- ボーナス月加算額(年2回)
- ---円
- 返済総額
- ---万円
条件を入力してください
- 物件価格
- 14,990 万円
- 頭金
- 万円
- 借入金額
- --- 万円
- ボーナス月加算額(年2回)
- 万円
- 返済期間(1~35年)
- 年
- 金利
- %
- ・シミュレーションはご指定いただいた項目に基づいた元利均等方式(固定金利タイプ)で簡易計算した値です。
- ・ご購入、ご売却にあたり、別途諸費用が必要となります。
- ・このシミュレーションはお客様への簡易計算ツールの提供を目的し、実際の融資を保証するものではありません。
ザ・ヨコハマタワーズ タワーウエスト 19階 のお問い合わせはクレアビジョンまで
ザ・ヨコハマタワーズ タワーウエスト の新着マッチングメールを登録する
会員登録するとマッチング機能がご利用いただけます。
ご希望の物件をマッチング登録すると、新着情報がいち早くメールで送られてきます。
0人がマッチング登録中!
【売買物件】募集中住戸一覧
1室表示