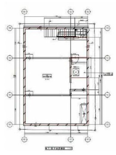
• RC学芸大学 B1階 間取り図
  • RC学芸大学 B1階 間取り図
  • 間取り (1枚)