メインステージ信濃町 成約済み物件 (9706-1101)

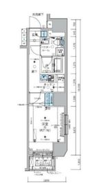
  • メインステージ信濃町 11階 間取り図
  • メインステージ信濃町 外観
  • メインステージ信濃町 写真
  • メインステージ信濃町 内装
  • メインステージ信濃町 物件写真 建物写真4
  • メインステージ信濃町 物件写真 建物写真5
建物詳細ページを見る

物件概要

物件名
メインステージ信濃町
賃料
---円
共益費/
管理費
---円
敷金
---ヶ月
礼金
---ヶ月
仲介
手数料
---ヶ月
フリー
レント
---ヶ月
その他費用
---
間取り
1K
(洋室7.1帖)
専有面積
27.56m2
所在階/
総階数
11階/地上13階 
入居
可能時期
---
情報登録日
2025年6月15日
情報更新日
2025年6月15日
所在地
東京都新宿区信濃町1-7地図
交通
東京メトロ丸ノ内線四谷三丁目駅」徒歩5分
JR中央・総武線信濃町駅」徒歩6分
都営大江戸線国立競技場駅」徒歩11分

問合番号
9706-1101
物件特徴
ペット可、分譲賃貸
更新料
---ヶ月
築年月
2014年1月
総戸数
53戸
建物構造
RC造
保険
要加入
保証会社
利用必須
方角
契約形態
普通賃貸借契約
ペット
可 敷金1ヵ月積み増し
SOHO・
事務所
不可 
取引態様
媒介

備考:

more

建物設備

エレベーター,オートロック,宅配ボックス,TVドアホン,バイク置き場,駐輪場,敷地内ゴミ置き場,24時間管理,防犯カメラ,BS,CS,CATV,インターネット

部屋設備

独立洗面台,ウォシュレット,浴室乾燥機,システムキッチン,ガスコンロ,エアコン,ダブルロックキー,フローリング,角部屋

※掲載情報が現況と異なる場合は、現況を優先させていただきます。
※キャンペーン情報は予告なく変更・終了する場合がございます。詳細はお問い合わせください。
※部屋により敷金・礼金・キャンペーンの内容が異なる場合がございますので、詳しい情報は各部屋ページにてご確認ください。
※分譲賃貸は部屋によって所有者が異なる為、内装や設備が変更されている場合がございます。
※ペットの飼育やSOHO利用に関しては、建物自体が許可を出していても、所有者の意向により禁止とされている場合もございますのでご注意ください。

おすすめ物件情報

最近見た物件

閉じる

検討中リストに追加しました。

ページ上部の検討中リストより、追加した部屋情報が確認できます。

ページ上部の検討中リストより、追加した部屋情報が確認できます。