

備考:
【駐車場】38,000円~/月額
【共用施設】
・コンシェルジュ
・オーナーズラウンジ(13階)
・パーティルーム(13階)1,000円/1H 14時~22時
・ゲストルーム(14階)4,000円/1泊
※13階以上の居住者の方のみ利用可能 ※駐輪場・バイク置き場・駐車場の空き状況等詳細につきましてはお問い合わせください。
エレベーター,オートロック,宅配ボックス,TVドアホン,駐車場,駐輪場,ラウンジ,コンシェルジュ,ゲストルーム,パーティールーム,敷地内ゴミ置き場,内廊下,24時間管理,防犯カメラ,BS,CS,CATV,インターネット,閑静な住宅街
※掲載情報が現況と異なる場合は、現況を優先させていただきます。
※キャンペーン情報は予告なく変更・終了する場合がございます。詳細はお問い合わせください。
※部屋により敷金・礼金・キャンペーンの内容が異なる場合がございますので、詳しい情報は各部屋ページにてご確認ください。
※分譲賃貸は部屋によって所有者が異なる為、内装や設備が変更されている場合がございます。
※ペットの飼育やSOHO利用に関しては、建物自体が許可を出していても、所有者の意向により禁止とされている場合もございますのでご注意ください。
鵜ノ澤(男性)
2016/09/11
お客様のご案内に行って参りました。
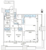
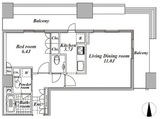
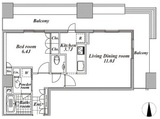
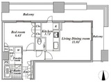
「五反田駅」より徒歩5分の立地に建っており、駅からの道は歩道橋を利用できるので信号にも引っかからずスムーズに向かうことが出来ました。1階ロビーは大きなソファーがあり、ガラス張りの壁からは光が差し込んでおりました。1Rのお部屋をご案内いたしましたが、シューズインクローゼットなど収納スペースも多くお風呂も広々としており、快適な生活が送れそうです。
※これらの口コミは、ご成約者様や営業スタッフによる主観的な意見や感想です。建物の価値を客観的に評価するものではありません。あくまでも一つの参考としてご活用ください。
空室確認・内覧予約・空き待ちをご希望のお客様は、こちらよりお気軽にお問い合わせください。
03-6890-7755
