

エレベーター,オートロック,宅配ボックス,TVドアホン,駐車場,駐輪場,敷地内ゴミ置き場,防犯カメラ,BS,CS,CATV,インターネット,閑静な住宅街
※掲載情報が現況と異なる場合は、現況を優先させていただきます。
※キャンペーン情報は予告なく変更・終了する場合がございます。詳細はお問い合わせください。
※部屋により敷金・礼金・キャンペーンの内容が異なる場合がございますので、詳しい情報は各部屋ページにてご確認ください。
※分譲賃貸は部屋によって所有者が異なる為、内装や設備が変更されている場合がございます。
※ペットの飼育やSOHO利用に関しては、建物自体が許可を出していても、所有者の意向により禁止とされている場合もございますのでご注意ください。
鵜ノ澤(男性)
2016/11/13
日比谷線「広尾駅」2番出口より徒歩5分の立地に建っております。物件までの道のりは外苑西通りと明治通り沿いの大通り沿いを通るため、スムーズに向かうことが出来ます。
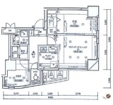
物件は上層階のお部屋をご案内致しましたが、東に面した窓からは公園が見え緑の感じることのできる環境です。また、公園があるため高い建物が建っておらず、光が差し込む明るいお部屋でした。ベッドルームには広めの収納もあり使い勝手の良い間取りになっています。
※これらの口コミは、ご成約者様や営業スタッフによる主観的な意見や感想です。建物の価値を客観的に評価するものではありません。あくまでも一つの参考としてご活用ください。
空室確認・内覧予約・空き待ちをご希望のお客様は、こちらよりお気軽にお問い合わせください。
03-6890-7755
