

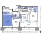
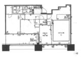
備考:
【駐車場】396台 19,000/月額(税別)
【バイク置き場】39台 3,000/月額(税別)
【駐輪場】1200台 200円/月額(税別)
【共用施設】
◇2階
・コミュニティルーム
◇4階
・ゲストルーム
◇40階
・スカイラウンジ
◇その他
・コンシェルジュサービス
・宅配ボックス
・共用部自動散水システム
・お引越し無料パック
・布団レンタルサービス
・布団丸洗い保管サービス
・ライフサポートサービス
・靴修理サービス
※駐輪場・バイク置き場・駐車場の空き状況等詳細につきましてはお問い合わせください。
エレベーター,オートロック,宅配ボックス,TVドアホン,トランクルーム,ペット足洗い場,駐車場,大型駐車場,バイク置き場,駐輪場,ラウンジ,キッズルーム,コンシェルジュ,ゲストルーム,パーティールーム,敷地内ゴミ置き場,内廊下,オール電化,24時間管理,防犯カメラ,BS,CS,CATV,インターネット,免震・制震
※掲載情報が現況と異なる場合は、現況を優先させていただきます。
※キャンペーン情報は予告なく変更・終了する場合がございます。詳細はお問い合わせください。
※部屋により敷金・礼金・キャンペーンの内容が異なる場合がございますので、詳しい情報は各部屋ページにてご確認ください。
※分譲賃貸は部屋によって所有者が異なる為、内装や設備が変更されている場合がございます。
※ペットの飼育やSOHO利用に関しては、建物自体が許可を出していても、所有者の意向により禁止とされている場合もございますのでご注意ください。
※これらの口コミは、ご成約者様や営業スタッフによる主観的な意見や感想です。建物の価値を客観的に評価するものではありません。あくまでも一つの参考としてご活用ください。
空室確認・内覧予約・空き待ちをご希望のお客様は、こちらよりお気軽にお問い合わせください。
045-565-9266
