

仲介手数料無料キャンペーン中です。
※キャンペーン内容は売買、賃貸、お部屋により異なります。
エレベーター,オートロック,宅配ボックス,TVドアホン,バイク置き場,駐輪場,敷地内ゴミ置き場,24時間管理,防犯カメラ,BS,CS,CATV,インターネット
※掲載情報が現況と異なる場合は、現況を優先させていただきます。
※キャンペーン情報は予告なく変更・終了する場合がございます。詳細はお問い合わせください。
※部屋により敷金・礼金・キャンペーンの内容が異なる場合がございますので、詳しい情報は各部屋ページにてご確認ください。
※分譲賃貸は部屋によって所有者が異なる為、内装や設備が変更されている場合がございます。
※ペットの飼育やSOHO利用に関しては、建物自体が許可を出していても、所有者の意向により禁止とされている場合もございますのでご注意ください。
富川(男性)
2024/09/30
東京メトロ丸ノ内線「新宿御苑前」駅徒歩5分、都営新宿線「曙橋」駅徒歩10分の靖国通り沿い立地に建つ、
地上18階建てのマンションです。
ビックターミナル「新宿駅」も徒歩圏内です。
また、渋谷駅や池袋駅、大手町駅など都心の主要駅にもスマートなアクセスが可能です。
新宿御苑が近く華やかな都市環境と深緑が調和する住環境となっております。
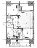
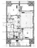
ルームプランは1SLDK~3LDKのラインアップとなっており、広めのお部屋がご用意されております。
インテリアカラーは階数によって異なり、ホワイトとブラウンの2パターンがありました。
今回は11階の1SLDKをご案内致しました。
食洗器と床暖房が設備されており、お部屋の形も家具の配置がしやすくデザインと機能性を両立した快適な空間となっております。
また、小型犬、猫のペット飼育も相談可能となります。
南条(男性)
2021/03/19
東京メトロ丸の内線「新宿御苑駅」2番出口より徒歩5分。靖国通り沿いに物件はございます。
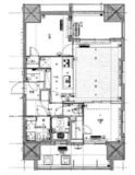
間取りは1SLDK~3LDKの全6タイプ。
全居室にエアコン、全住戸に床暖房や食洗機が備え付けられており、分譲仕様となっておりました。
フロア毎に内装の色合いが違い、奇数階はホワイト、偶数階はブラウンの仕様です。
高層階は眺望が抜けており、東京スカイツリーを望むことのできるお部屋もございます。
※これらの口コミは、ご成約者様や営業スタッフによる主観的な意見や感想です。建物の価値を客観的に評価するものではありません。あくまでも一つの参考としてご活用ください。
空室確認・内覧予約・空き待ちをご希望のお客様は、こちらよりお気軽にお問い合わせください。
03-6890-7755