

仲介手数料無料キャンペーン中です。
※キャンペーン内容は売買、賃貸、お部屋により異なります。
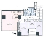
備考:
【こちらもご覧下さい(敷地内別棟)】
大崎ウエストシティタワーズ イースト
【駐車場】28,000円~47,000円/月額
横行昇降式:302台(うちハイルーフ117台)
立体駐車場:200台(うちハイルーフ102台、ミドルルーフ6台)
ハイルーフ:全長5,300㎜ 全幅1,950㎜ 重量2,300kg
普通車: 全長5,300㎜ 全幅1,850㎜ 重量2,000kg
【バイク置き場】3,000円~4,000円/月額
97台(大型40台・小型57台)
【駐輪場】300円/月額
1,189台
【共用施設】
・ゲストルーム(4室)5,000円/1泊
・シアタールーム 1,000/3時間
・パーティルーム 1,000円/2時間
・プライベートガーデン
・スカイラウンジ
【構造】制震構造
【設計】株式会社UG都市建築
【施工会社】清水・フジタ建設共同企業体 ※駐輪場・バイク置き場・駐車場の空き状況等詳細につきましてはお問い合わせください。
エレベーター,オートロック,宅配ボックス,TVドアホン,トランクルーム,ペット足洗い場,駐車場,大型駐車場,バイク置き場,駐輪場,ラウンジ,コンシェルジュ,フィットネスジム,ゲストルーム,パーティールーム,シアタールーム,バレーサービス,敷地内ゴミ置き場,各階ゴミ置き場,内廊下,24時間管理,防犯カメラ,BS,CS,CATV,インターネット,閑静な住宅街,免震・制震
※掲載情報が現況と異なる場合は、現況を優先させていただきます。
※キャンペーン情報は予告なく変更・終了する場合がございます。詳細はお問い合わせください。
※部屋により敷金・礼金・キャンペーンの内容が異なる場合がございますので、詳しい情報は各部屋ページにてご確認ください。
※分譲賃貸は部屋によって所有者が異なる為、内装や設備が変更されている場合がございます。
※ペットの飼育やSOHO利用に関しては、建物自体が許可を出していても、所有者の意向により禁止とされている場合もございますのでご注意ください。
※これらの口コミは、ご成約者様や営業スタッフによる主観的な意見や感想です。建物の価値を客観的に評価するものではありません。あくまでも一つの参考としてご活用ください。
空室確認・内覧予約・空き待ちをご希望のお客様は、こちらよりお気軽にお問い合わせください。
03-6890-7755
