

礼金0キャンペーン中です。
※キャンペーン内容は売買、賃貸、お部屋により異なります。
エレベーター,オートロック,宅配ボックス,TVドアホン,駐車場,バイク置き場,駐輪場,敷地内ゴミ置き場,内廊下,24時間管理,防犯カメラ,BS,CS,CATV,インターネット,閑静な住宅街
※掲載情報が現況と異なる場合は、現況を優先させていただきます。
※キャンペーン情報は予告なく変更・終了する場合がございます。詳細はお問い合わせください。
※部屋により敷金・礼金・キャンペーンの内容が異なる場合がございますので、詳しい情報は各部屋ページにてご確認ください。
※分譲賃貸は部屋によって所有者が異なる為、内装や設備が変更されている場合がございます。
※ペットの飼育やSOHO利用に関しては、建物自体が許可を出していても、所有者の意向により禁止とされている場合もございますのでご注意ください。
中川(女性)
2021/05/19
東急多摩川線「武蔵新田」駅より徒歩10分のところに本物件はございました。
隣の「下丸子」駅からも徒歩圏内のため、使い分けができる便利な立地となっております。
今回は「武蔵新田」駅から向かいましたが、商店街を過ぎた住宅地の中にあり周辺環境は非常に静かでした。
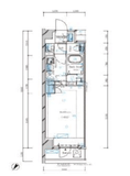
単身層がメインのマンションとなり、お部屋は洋室部分が約9帖ございますので、広めの1Kタイプでお探しの方にお勧めです。
玄関も広くとれており、シューズボックス以外のスペースも確保されておりましたので、収納は申し分ないと思います。
また、洗面台がお手洗いと独立しているのも魅力的でした。
北東向きで目の前の建物が近い点は気になりましたが、周辺に高い建物はなかったので日当たりは問題ございませんでした。
※これらの口コミは、ご成約者様や営業スタッフによる主観的な意見や感想です。建物の価値を客観的に評価するものではありません。あくまでも一つの参考としてご活用ください。
空室確認・内覧予約・空き待ちをご希望のお客様は、こちらよりお気軽にお問い合わせください。
03-6890-7755